Описание проекта
Дом построен из финского клеёного бруса «KONTIO». За основу был взят проект «Linaria», в который были внесены необходимые заказчику изменения.
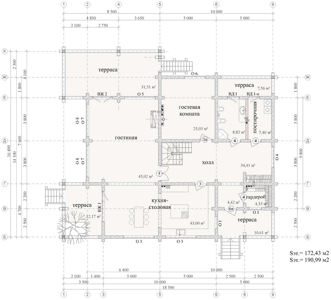
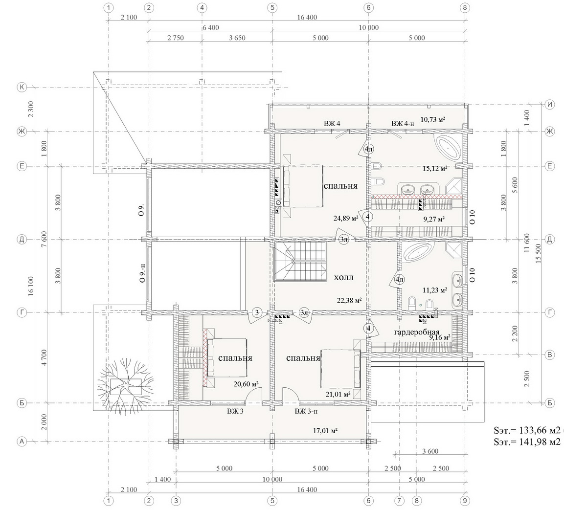
Планировка
Характеристики проекта
Кровля
Стены
Клееный брус
Перегородки
Перекрытия
Общая площадь строение, м2
384
Внутренняя отделка
Полезная площадь, м2
Высота потолков, м
Фундамент
Фасад
Стиль
Форма крыши
Комплектации
Выгодная
Тёплый контур
Стены – клеёный брус 200х275мм.
Дом и снаружи и внутри окрашен маслом OSMO.
Кровля – черепица BRAAS.
Окна – дерево алюминиевые.
Стоимость от 35 000 000 ₽
Может заинтересовать










