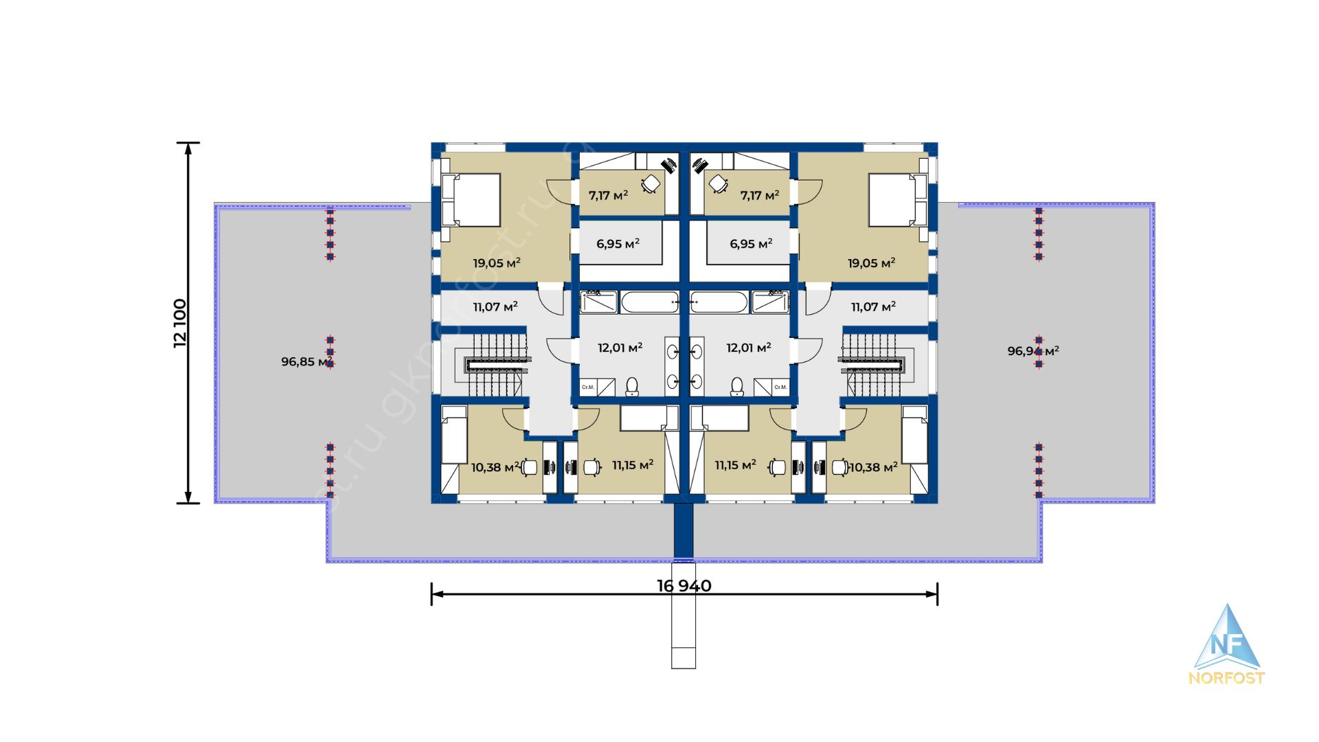
Проект дома NF 699 представляет собой трехуровневый таунхаус с площадью 909 кв.м. и прямоугольной формой, включающей смещенные объемы. Он комфортно подойдет для двух семей и имеет общие большие террасы. Планировки квартир симметричны. В цокольном этаже проекта предусмотрен гараж на 2 машиноместа, кладовое помещение, котельная, игровая комната и покерная комната. На первом этаже размещена прихожая, жилой блок состоит из спальни, общего санузла и мастер-спальни. Кухня с кладовой и гостиная со сквозным камином имеют выход на общую террасу площадью 169 кв.м. На втором этаже располагается общий санузел, 2 спальни и мастер-спальня с гардеробной и кабинетом. Из холла и всех спален можно выйти на террасу площадью 97 кв.м. Этот проект дома предлагает просторные и комфортабельные пространства для двух семей. Большие террасы добавляют дополнительное пространство для отдыха и наслаждения свежим воздухом.















