Продается Коттедж, 389.2м², 2эт.
Московская область, Истринский район, КП Ренессанс Парк

1/8
95 000 000 ₽
244 090 ₽ за м²
Общая389.2 м²
Участок14.15 сот.
Материал домаКлееный брус
Этажей2
Построен2021
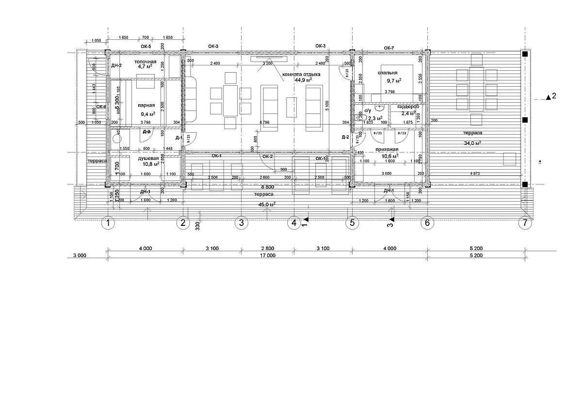
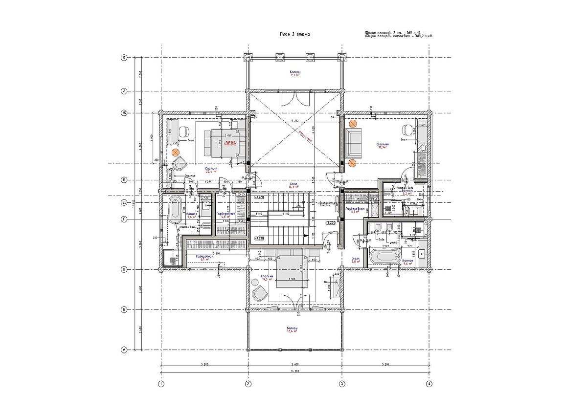
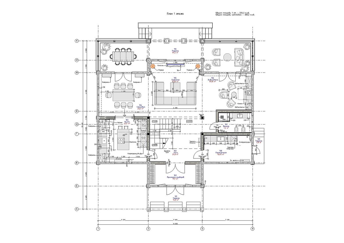
Двухэтажный особняк в стиле классической русской усадьбы стоит на участке 14,15 соток в престижном коттеджном посёлке «Ренессанс Парк». Отделка фасада выполнена из из клееного бруса. Входная группа и терраса второго этажа украшены белоснежными колоннами и витой оградой. Площадь дома — 389.2 м2. На первом этаже много общих пространств для всей семьи: просторные комнаты для обустройства столовой, библиотеки, гостиной и кухни, а также общий санузел. На втором этаже расположены три спальни с собственными санузлами и гардеробными. Дом расположен в тихой части посёлка в 10 минутах ходьбы до большого парка с водоёмом. Оформление территории участка остаётся на усмотрение хозяев. Все участки по соседству застроены.
Электричество
Газ
Водоснабжение
Канализация
Отопление
Статус участкаИЖС
Количество спален3
СанузелВ доме
Кадастровый номер0:::








