Продается Дом, 171.0м², 2эт.
Московская обл, г Пушкино, г Ивантеевка

1/5
21 900 000 ₽
128 070 ₽ за м²
Общая171 м²
Участок5 сот.
Материал домаГазобетон
Этажей2
Построен2024
Теплый каменный дом 171 м.кв. на участке 5 соток в шаге от г. Ивантеевка.
Расположение реальное!
Цена указана за возведение дома с наружной отделкой как на визуализации, включая огороженный участок с подведенными коммуникациями (вода- скважина, канализация-септик, газификация-газгольдер).
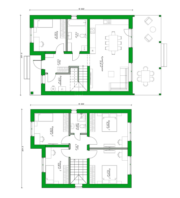
Общая площадь дома - 171 м²
Площадь помещений – 127 м²
Терраса – 18 м²
Высота потолков: 1-й этаж - 3,25 м, 2-й этаж - 3 м.
Благодаря свободной планировке вы сможете предусмотреть просторную кухню-гостиную, 5 спален, санузел на каждом этаже, котельную по газовым нормам и вместительную прихожую.
На изображениях смотрите один из возможных вариантов планировки (зеленым обозначены несущие стены, которые учтены в стоимости, серым – перегородки).
В стоимость дома входят:
Дом: утепленный фундамент с отмосткой, теплые стены из газобетона, монолитное межэтажное перекрытие, теплое чердачное перекрытие, кровля (цементно-песчаная черепица со снегозадержанием), вентканалы, тройные стеклопакеты, входная дверь с терморазрывом, наружная отделка как на визуализациях.
Участок – 5 соток с коммуникациями: вода - скважина, кессон и насос для водоснабжения, канализация - септик + дренажный колодец, газификация - газгольдер.
Преимущества местоположения:
- Развитая городская инфраструктура: магазины, школа, детские сады, игровые и спортивные площадки и т.д..
- Удобное транспортное сообщение с Москвой: рядом станция электричек Ивантеевка-1, Детская, автобусная остановкаа до Москвы и по городу.
- Асфальтированные дороги и уличное освещение.
Уникальное предложение на рынке!
У вас есть возможность жить в своем собственном просторном доме в экологически чистом районе Подмосковья по цене квартиры.
Подходит под госпрограммы льготной ипотеки, поможем с подготовкой документов и получением одобрения.
Также работаем с маткапиталом.
Строительная компания с 17-летним опытом. Не посредники!
Бронирование на этапе “котлована”, чтобы Вы могли воспользоваться льготной и семейной ипотекой!
Электричество
Газ
Водоснабжение
Канализация
Отопление
Статус участкаСНТ
Количество спален5
СанузелВ доме
Кадастровый номер50:14:0030401:23





