Описание проекта
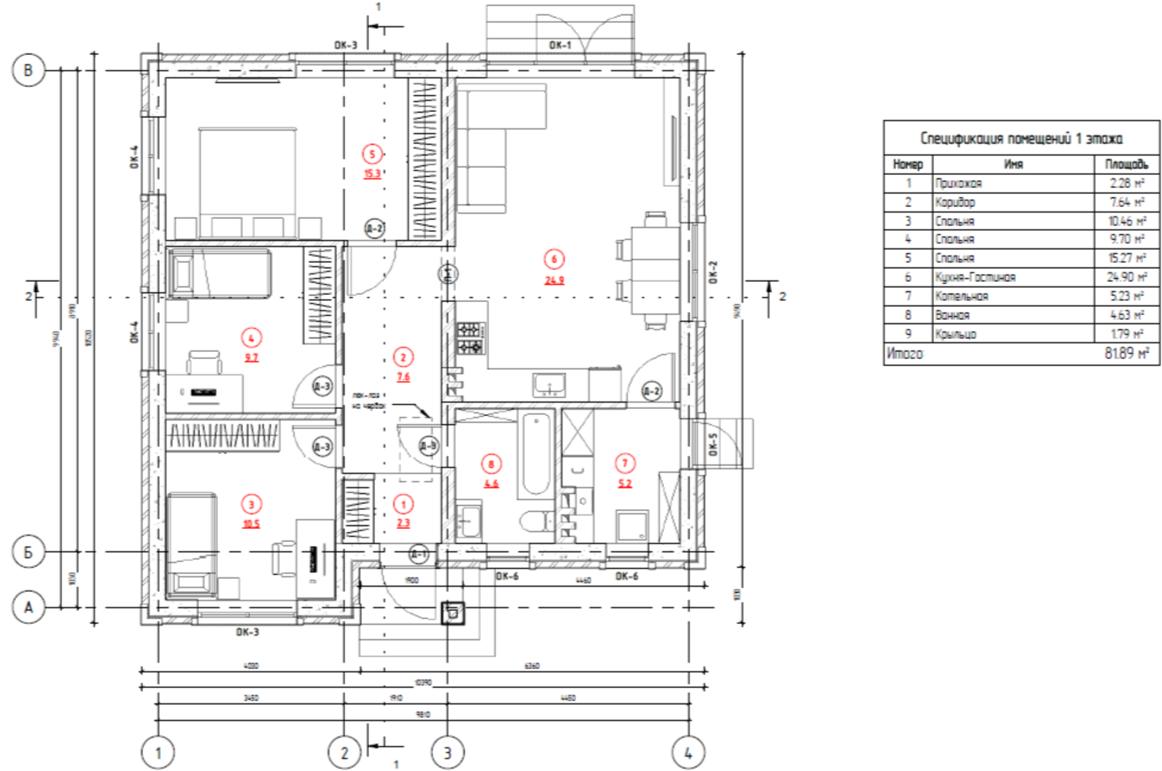
Общая площадь дома- 82,11 кв. м.Внутренняя площадь дома- 80,17 кв. м.Кол-во комнат- 3Сан узел- 1
Планировка
Характеристики проекта
Кровля
Металлочерепица
Стены
Газобетонные блоки
Перегородки
Кирпич
Перекрытия
Балочные
Общая площадь строение, м2
80.17
Внутренняя отделка
Черновая
Полезная площадь, м2
80.17
Высота потолков, м
3
Фундамент
Ленточный
Фасад
Кирпичный
Стиль
Современный
Форма крыши
Четырехскатные
Кухня-гостиная
Котельная
Ростовская область
Комплектации
Выгодная
Базовая
Фундамент ленточный Заглубление по периметру 900 мм, заглубление перемычек 800 мм; Материал несущих стен - газоблок 250*300, D500 (на один газоблок поднимаем высоту стен, каждые три ряда армированная сетка); Материал плиты перекрытия - Бетон марки М250
Стоимость от 47 500 000 ₽
Может заинтересовать













