Описание проекта
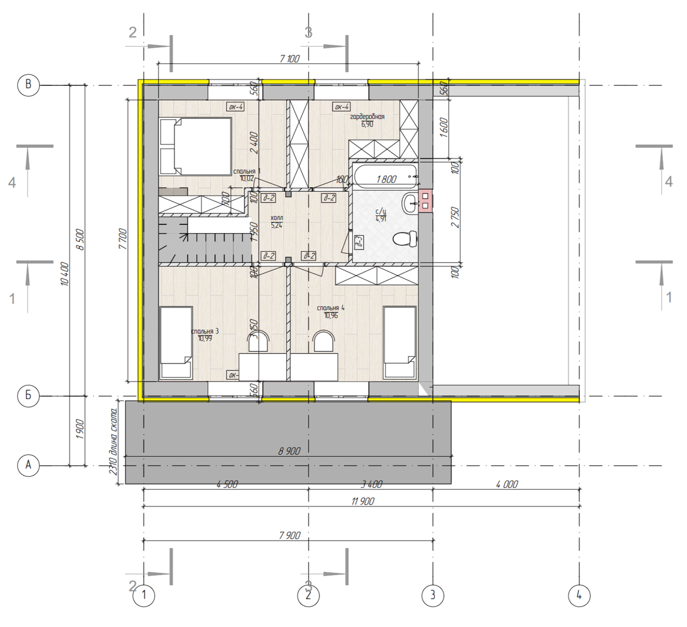
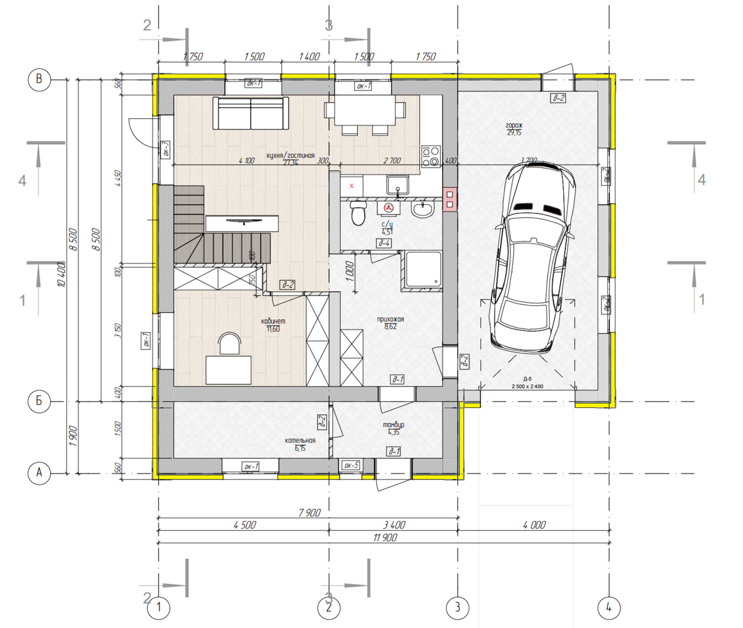
Тип фундамента: ленточный / свайно-ростверковый / монолитная плита; Отмостка; Септик, скважина Стены: газобетон D-400, облицовочный кирпич; Межэтажные плиты перекрытия Кровля: двухскатная утепленная, металлочерепица, подшива, водосточная система, снегозадержатели Двери с терморазрывом, ПВХ окна Площадь 140 м²: кухня-гостиная, 3 спальни, кабинет, котельная, гардероб, прихожая, тамбур, крыльцо
Планировка
Характеристики проекта
Кровля
Металлочерепица
Стены
Газобетонные блоки
Перегородки
Газобетон
Перекрытия
Балочные
Общая площадь строение, м2
140
Внутренняя отделка
Черновая
Полезная площадь, м2
120
Высота потолков, м
2.82
Фундамент
Свайный
Фасад
Штукатурка
Стиль
Классический
Форма крыши
Двухскатные
Гараж
Кухня-гостиная
Котельная
Гардеробная
Пермский край
Комплектации
Выгодная
Базовая
Тип фундамента: ленточный / свайно-ростверковый / монолитная плита
Стены: газобетон D-400;
Межэтажные плиты перекрытия
Кровля: двухскатная утепленная, металлочерепица
Двери с терморазрывом, ПВХ окна
Площадь 140 м²: кухня-гостиная, 3 спальни, кабинет, котельная, гардероб, прихожая, тамбур, крыльцо
Стоимость от 7 890 000 ₽
Может заинтересовать














