Описание проекта
Панельно-каркасный дом из СИП-панелей с мансардным этажом на фундаменте из железобетонных свай с обвязкой брусом
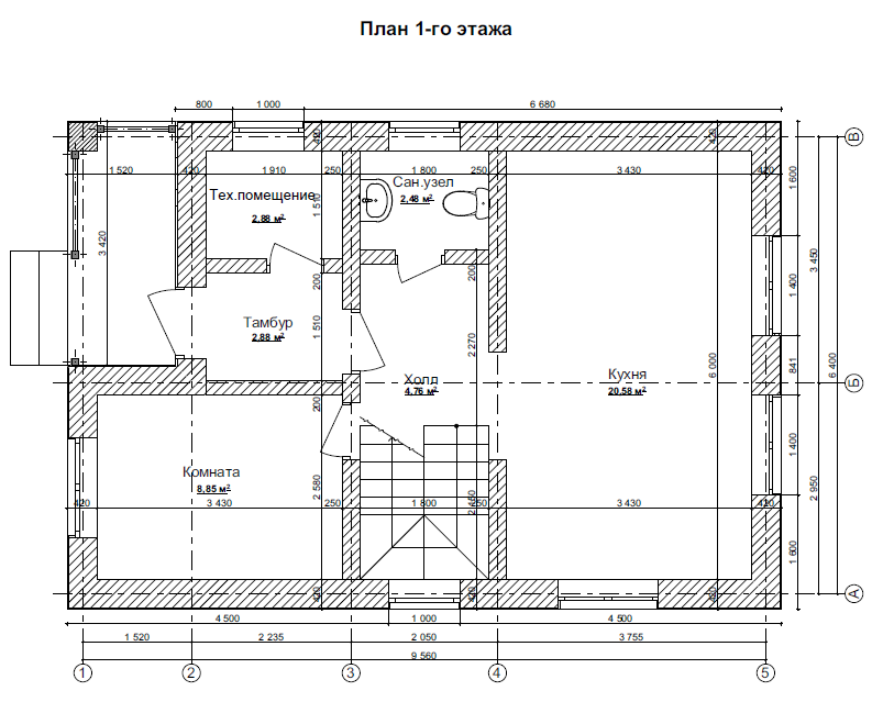
Планировка
Характеристики проекта
Кровля
Стены
Сип-панели
Перегородки
Перекрытия
Общая площадь строение, м2
90
Внутренняя отделка
Полезная площадь, м2
Высота потолков, м
Фундамент
Фасад
Стиль
Форма крыши
Калужская область
Московская область
Москва
Комплектации
Популярная
Тёплый контур
Базовая комплектация "Тёплый контур" включает:
- Фундамент из железобетонных свай с обвязкой брусом 150х150 мм камерной сушки
- Каркас из цельного бруса 100х200 мм камерной сушки
- Перекрытие цоколя SIP-панели, S=224 мм, мансардного этажа – SIP-панели, S=174 мм
- Стены наружные – SIP-панели, S=174 мм, межкомнатные – SIP-панели, S=124 мм
- Кровля двускатная металлочерепица
- Внешняя отделка виниловым сайдингом
Стоимость от 4 500 000 ₽
Может заинтересовать











