Описание проекта
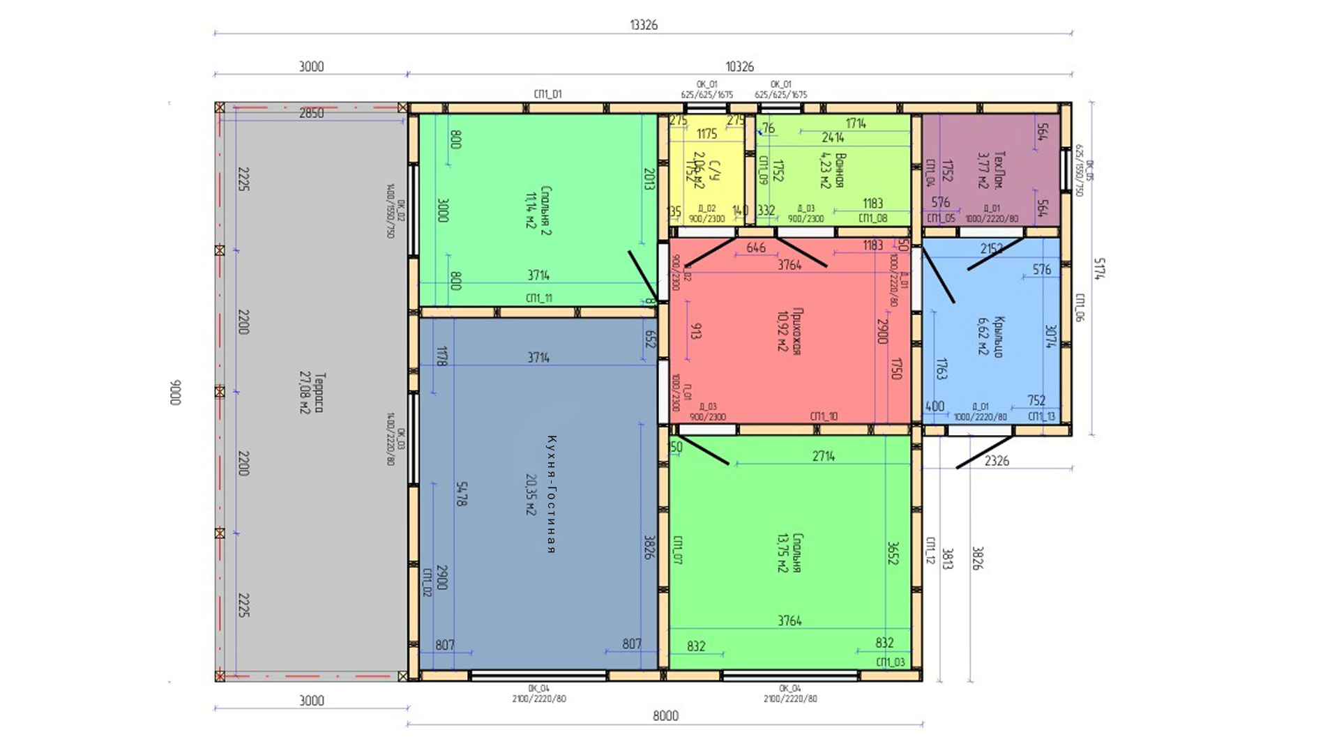
Проект № 8 дом площадью 99,89 с 2 спальнями, одним санузлом Теплый контур : Винтовые сваи; Домокомплект; Окна Veka 5 камерные; Входная дверь с терморазрывом U-Termo; Кровля Профлист ( цвет стандарт).
Планировка
Характеристики проекта
Кровля
Профлист
Стены
Сип-панели
Перегородки
Деревянные
Перекрытия
Балочные
Общая площадь строение, м2
99.89
Внутренняя отделка
Черновая
Полезная площадь, м2
99.89
Высота потолков, м
2.8
Фундамент
Свайный
Фасад
Комбинированный
Стиль
Русский
Форма крыши
Двухскатные
Кухня-гостиная
Окна в пол
Терраса
Быстровозводимый
Кемеровская область
Комплектации
Рекомендуем
Базовая
Теплый контур :
Винтовые сваи;
Домокомплект;
Окна Veka 5 камерные;
Входная дверь с терморазрывом U-Termo;
Кровля Профлист ( цвет стандарт).
Стоимость от 5 200 000 ₽
Может заинтересовать















