Описание проекта
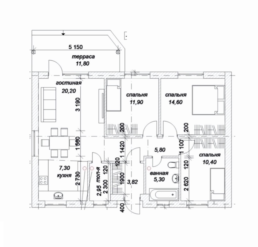
Индивидуальный жилой дом: площадь дома – 82,27 м2. Планировка: - кухня-гостиная площадью 27,50 м2; - 3 изолированных комнаты площадью от 10,40 м2 до 14,60 м2; - санузел 5,30 м2; - прихожая 9,62 м2; - гардеробная 2,95 м2.
Планировка
Характеристики проекта
Кровля
Стены
Кирпич
Перегородки
Перекрытия
Общая площадь строение, м2
82
Внутренняя отделка
Полезная площадь, м2
Высота потолков, м
Фундамент
Фасад
Стиль
Форма крыши
Саратовская область
Волгоградская область
Пензенская область
Комплектации
Рекомендуем
Базовая
Фундамент - ленточный фундамент.
Наружные стены - двойной поризованный камень завода Римкер 250 мм, утеплитель 50 мм, облицовочный кирпич - 120 мм. Внутренние стены - двойной поризованный камень завода Римкер 250 мм. Перегородки - кирпич 120 мм. Кровля 4-х скатная (сложная) с организованным водостоком.
Оконное остекление выполняется из 60 мм профиля (2-х камерный стеклопакет) с наружной (уличной) ламинацией.
Входная дверь с терморазрывом (коттеджный вариант).
Утепление потолка – Минплита Изолайт (или аналог, плотность 40 кг/м3) толщиной 150 мм.
Стоимость от 4 340 000 ₽
Может заинтересовать













