Описание проекта
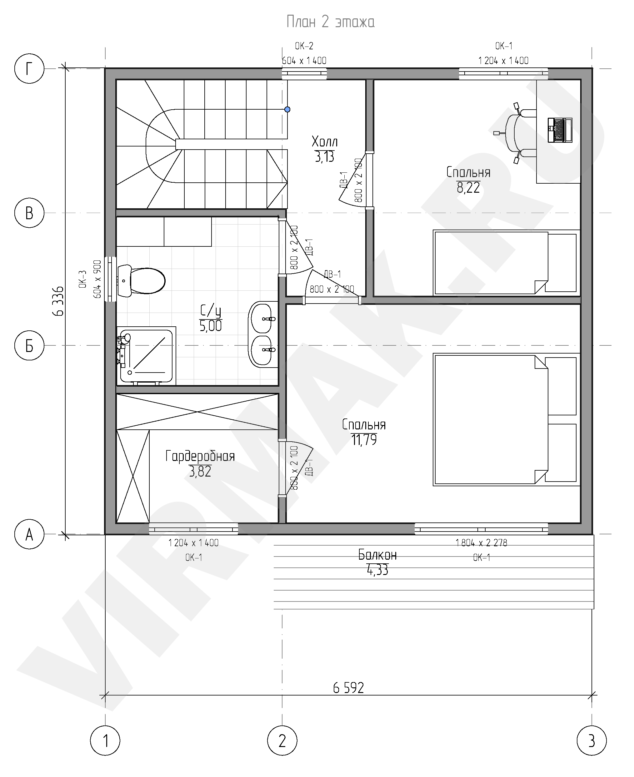
Современный, удобный двухэтажный дом из сип панелей с балконом, строительство под ключ. Планировка 1 этажа: объединенное пространство кухни-столовой (21,08 м²), санузел, котельная Планировка 2 этажа: две спальни, гардеробная Особенность проекта – широкая терраса, балкон, продуманная до мелочей планировка.
Планировка
Характеристики проекта
Кровля
Стены
Сип-панели
Перегородки
Перекрытия
Общая площадь строение, м2
83
Внутренняя отделка
Полезная площадь, м2
Высота потолков, м
Фундамент
Фасад
Стиль
Форма крыши
Комплектации
Выгодная
Стандарт
- фундамент на сваях 2500 мм, оголовок 200×200 мм.
Стены и цокольное перекрытие:
- СИП панели VIRMAK® с ЦСП (ЦСП-1 ГОСТ 26816-2016)
- Нащельники на внешние углы ЦСП (ЦСП-1 ГОСТ 26816-2016)
Межэтажное перекрытие:
- Лаги перекрытия и поперечная обрешетка (ГОСТ 18288-87)
- ЦСП 12 мм (ЦСП-1 ГОСТ 26816-2016)
- Нащельник из ЦСП (ЦСП-1 ГОСТ 26816-2016) на внешний периметр перекрытия
Силовой каркас:
- Пиломатериал строганный камерной сушки (ГОСТ 18288-87)
Крыша и чердачное перекрытие:
- Лаги чердачного перекрытия (ГОСТ 18288-87)
- Стропильная система крыши (ГОСТ 18288-87)
- Пароизоляция Изоспан D, Россия/Ютафол Н 110, Чехия
- Проклейка примыкания пароизоляции к стенам специальными лентами Delta Multiband или аналоги
- Утепление чердачного перекрытия или крыши 200 мм Rockwool/Paroc/Knauf
- Классическая металлочерепица - 0,5 мм Grand Line
- Обрешетка/контррейка и поперечная обрешетка стропильной системы (ГОСТ 18288-87)
- Подкровельная гидроизоляция холодной крыши Изоспан D, Россия/Ютафол Н 110, Чехия
- Подкровельная мембрана утепляемой крыши (мансарды) Изоспан АМ, Россия/ ЮТАВЕК 115, Чехия
Монтаж:
- Заводское изготовление домокомплекта на заводе VIRMAK®
- Обработка пиломатериалов огнебиозащитным составом
- Монтаж силового каркаса дома из СИП панелей VIRMAK® с ЦСП
- Заделка межпанельных швов герметиком
- Монтаж проходных элементов в кровле для вентиляции
Стоимость от 4 496 000 ₽
Может заинтересовать














