Описание проекта
Панельно-каркасный дом из SIP-панелей на фундаменте из ж/б свай, наружные стены SIP-панели S=174 мм Межкомнатные перегородки – SIP-панели S=124 мм, перекрытие цоколя S=224 мм, кровля двускатная.
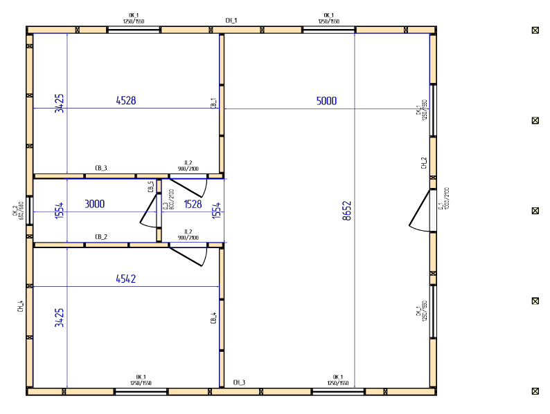
Планировка
Характеристики проекта
Кровля
Стены
Сип-панели
Перегородки
Перекрытия
Общая площадь строение, м2
85
Внутренняя отделка
Полезная площадь, м2
Высота потолков, м
Фундамент
Фасад
Стиль
Форма крыши
Московская область
Москва
Калужская область
Комплектации
Популярная
Под ключ
Комплектация "Под ключ" включает в себя коробку дома из SIP-панелей с добротной входной дверью на фундаменте из ж/б свай с обвязкой брусом, двускатную кровлю из металлочерепицы или профлиста, наружную отделку сайдингом, внутреннюю отделку гипсокартоном и инженерные коммуникации - автономная канализация, насосная станция для водоснабжения и электроснабжение и эл.отопление.
Стоимость от 4 500 000 ₽
Популярная
Тепловой контур
Комплектация "Тепловой контур" включает в себя коробку дома из SIP-панелей с добротной входной дверью на фундаменте из ж/б свай с обвязкой брусом, двускатную кровлю из металлочерепицы или профлиста, наружную отделку сайдингом и ввод в дом инженерных коммуникаций - автономная канализация, насосная станция для водоснабжения и электроснабжение и эл.отопление.
Стоимость от 3 500 000 ₽
Может заинтересовать









