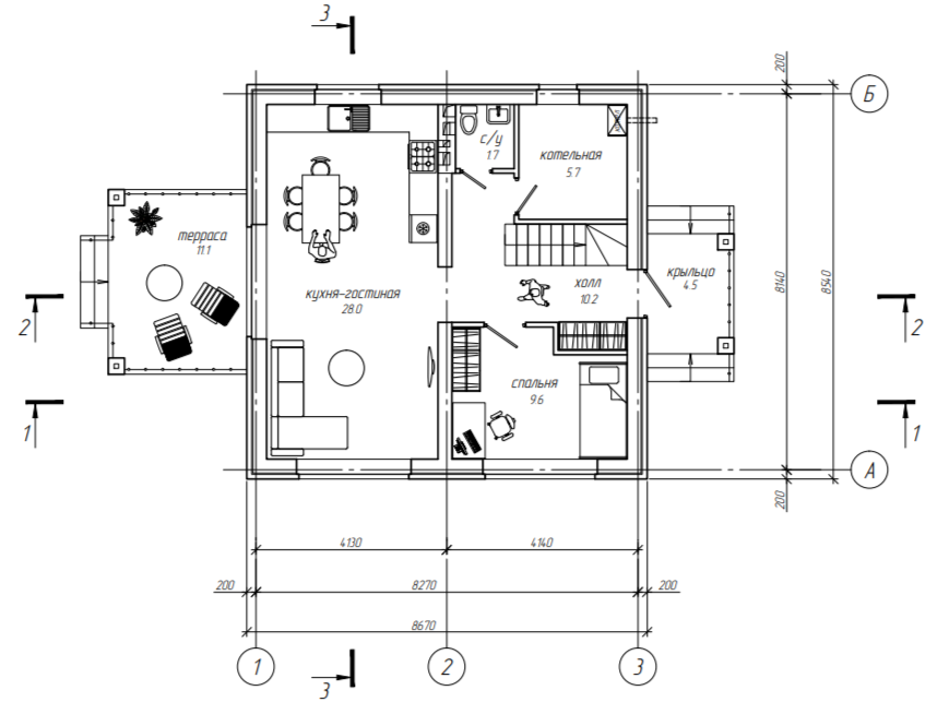
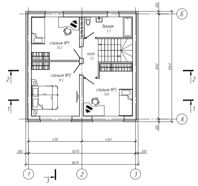
Проект двухэтажного дома со стенами из кирпича общей площадью 125 м2. В основе планировочной структуры дома применен принцип функционального зонирования помещений на индивидуальную и коллективную зоны. Индивидуальная зона зона охватывает функции сна, занятий личной гигиеной, отдыха. Учитывая специфику бытовых процессов, в этой зоне обеспечена максимальная изоляция входящих в нее помещений. Спальные комнаты сгруппированы и находятся на втором этаже дома. Так же при холле второго этажа предусмотрена ванная комната. Спальня первого этажа может быть переоборудована под комнату для гостей или рабочий кабинет. Коллективная зона включает в себя общую комнату (кухню-гостиную ) и холл. При холле первого этажа предусмотрены санузел и котельная. Из кухни предусмотрен выход на террасу и далее на приусадебный участок. Функциональная связь между зонами осуществляется через двухмаршевую лестницу.















