Описание проекта
Дом из оцилиндрованного бревна 22 см, площадь 140 м2. Лес Вашего дома доставляется из северных регионов, поэтому древесина плотная и будет служить долгие годы. Поэтапное строительство из качественных материалов, что позволяет Вам наблюдать весь процесс монтажа Вашего дома.
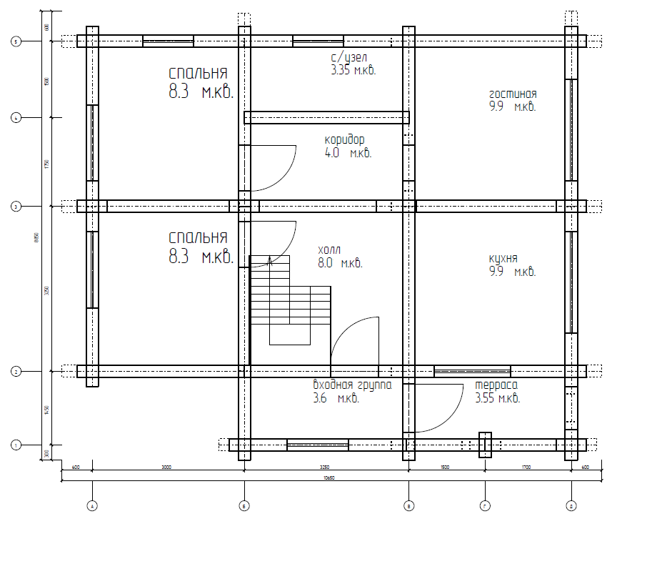
Планировка
Характеристики проекта
Кровля
Металлочерепица
Стены
Бревно
Перегородки
Деревянные
Перекрытия
Балочные
Общая площадь строение, м2
140
Внутренняя отделка
Черновая
Полезная площадь, м2
120
Высота потолков, м
2700
Фундамент
Ленточный
Фасад
Деревянный
Стиль
Русский
Форма крыши
Двухскатные
Ульяновская область
Чувашская республика
Республика Марий Эл
Республика Татарстан (Татарстан)
Республика Башкортостан
Комплектации
Популярная
Тепловой контур
В стоимость входит фундамент, сруб с монтажом, кровля, окна , входная дверь, черновые полы, тёплая, комфортная планировка, которую мы можем изменить под Ваши пожелания.
Стоимость от 3 200 000 ₽
Может заинтересовать














