Описание проекта
Теплый дом с большими витражными окнами. Дом 10.4*14.5=150.8 м.кв.
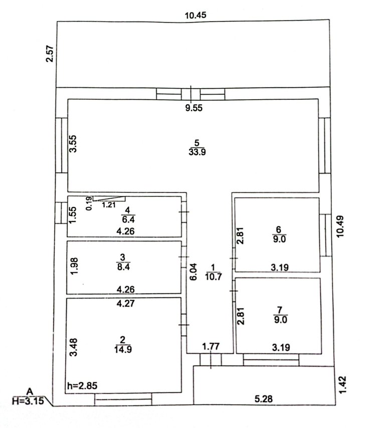
Планировка
Характеристики проекта
Кровля
Стены
Керамический блок
Перегородки
Перекрытия
Общая площадь строение, м2
150.8
Внутренняя отделка
Полезная площадь, м2
Высота потолков, м
Фундамент
Фасад
Стиль
Форма крыши
Четырехскатные
Веранда
Республика Башкортостан
Комплектации
Рекомендуем
Теплый дом
Теплые полы по всему дому с регулировкой в каждой комнате. Материал стен керамический блок, утепление 100 мм., облицовка кирпич. Подсветка дома по всему периметру. Качественные радиаторы во всех комнатах.
Стоимость от 7 100 000 ₽
Может заинтересовать













