Описание проекта
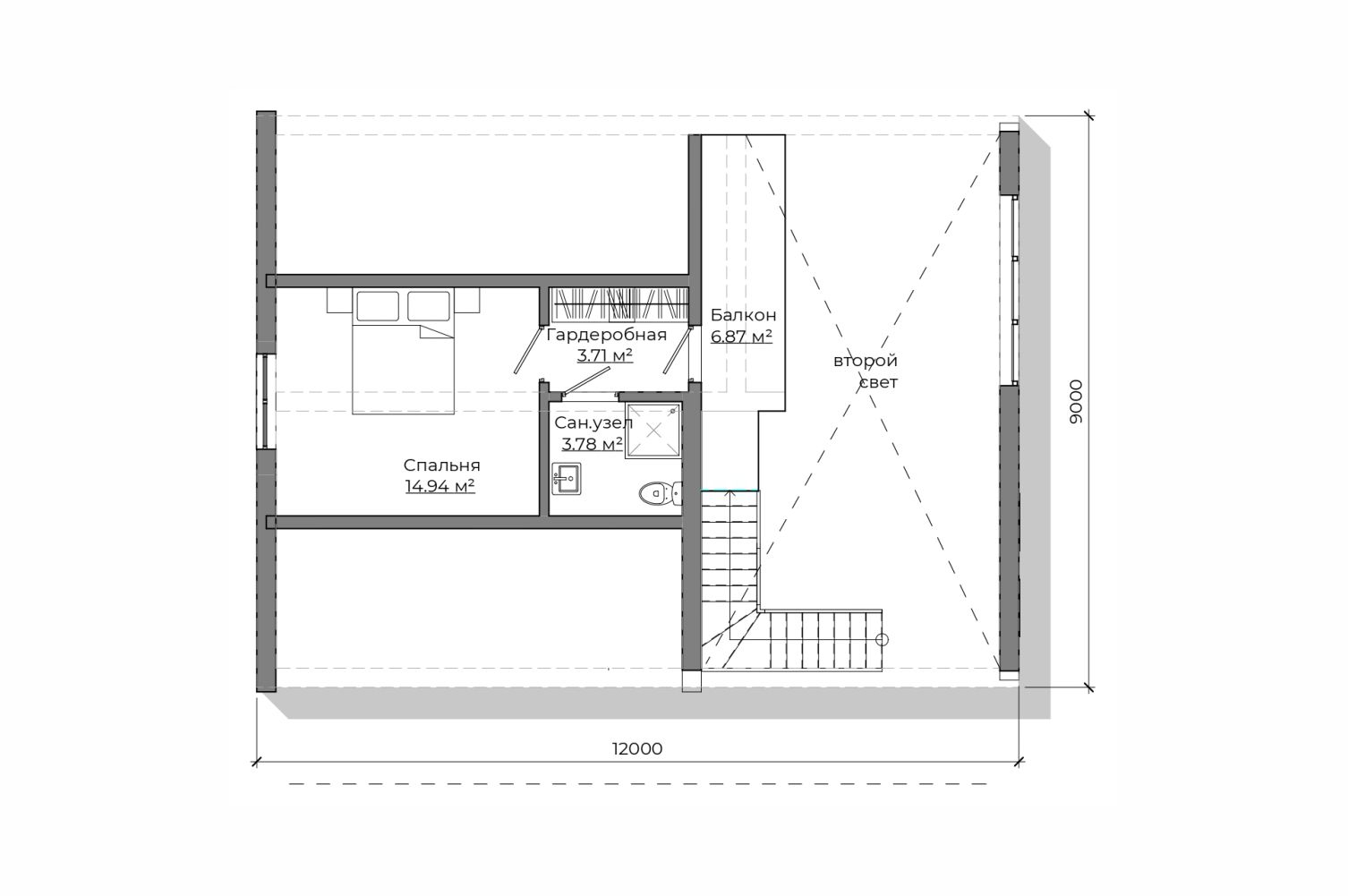
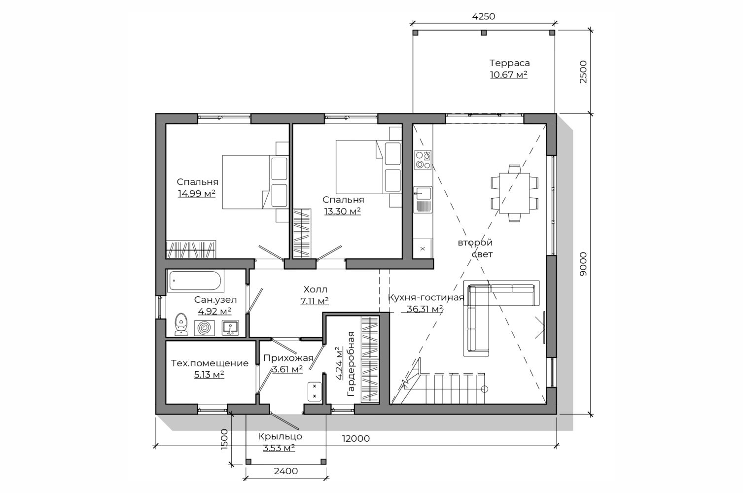
Площадь - 147 кв.м. Этажность - 1,5 этаж. Количество спален - 3 шт. Количество санузлов - 2 шт. Гарантия 5 лет. Срок изготовления от 5 месяцев.
Планировка
Характеристики проекта
Кровля
Стены
Газобетон
Перегородки
Перекрытия
Общая площадь строение, м2
147
Внутренняя отделка
Полезная площадь, м2
Высота потолков, м
Фундамент
Фасад
Стиль
Форма крыши
Санкт-Петербург
Ленинградская область
Новгородская область
Комплектации
Популярная
Базовая
В указанную стоимость входит коробка дома:
- фундамент (ж/б плита),
- стены (газобетон),
- перекрытие, кровля (металлочерепица),
- окна и двери внешние.
Стоимость от 5 972 904 ₽
Может заинтересовать














