Описание проекта
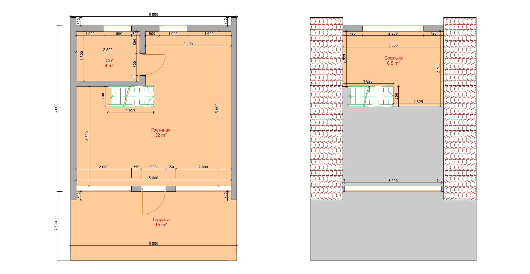
Размеры: 6х6 Общая площадь: 44,5 кв.м 2 этажа, 1 спальня Сроки строительства - 30-60 дней
Планировка
Характеристики проекта
Кровля
Профлист
Стены
Каркасно-щитовая технология
Перегородки
Деревянные
Перекрытия
Балочные
Общая площадь строение, м2
44.5
Внутренняя отделка
Под ключ
Полезная площадь, м2
44.5
Высота потолков, м
3.5
Фундамент
Свайный
Фасад
Деревянный
Стиль
Скандинавский
Форма крыши
Двухскатные
Панорамные окна
Комплектации
Рекомендуем
Под ключ
Размеры: 6х6
Общая площадь: 44,5 кв.м
2 этажа, 1 спальня
Сроки строительства - 30-60 дней
Стоимость от 3 240 000 ₽
Может заинтересовать











