Описание проекта
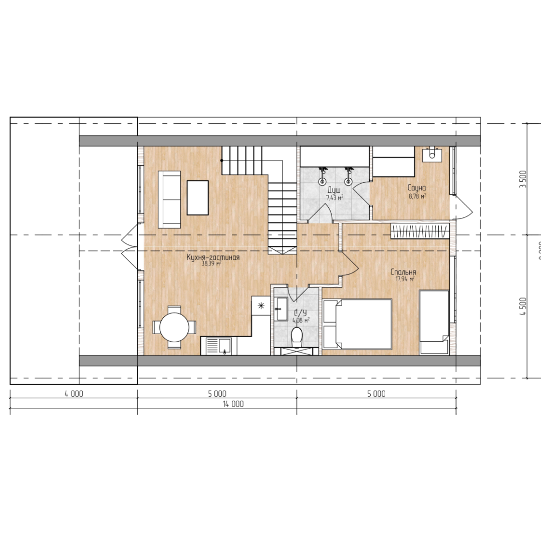
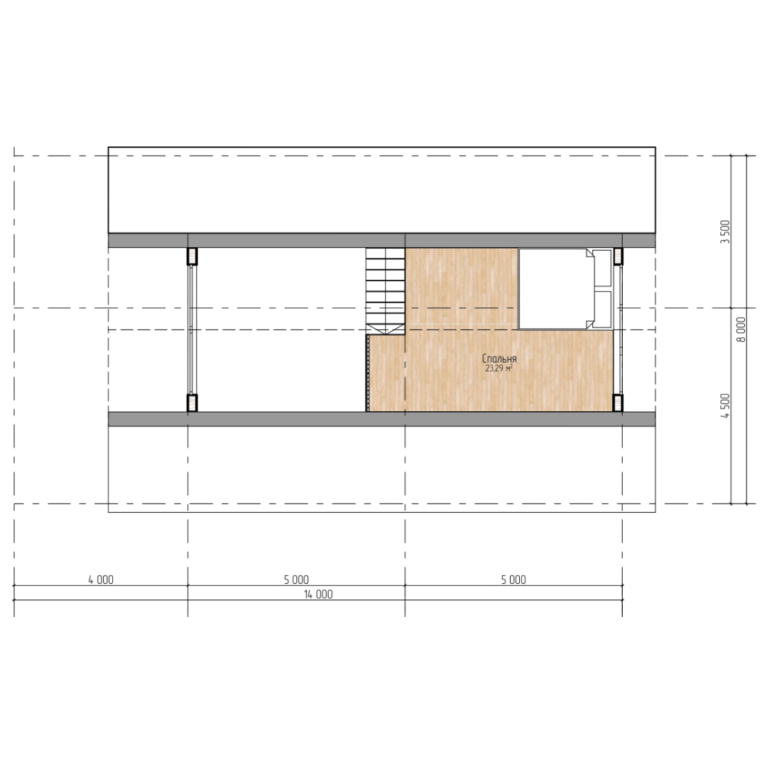
Общая площадь дома по проекту "А-Фрейм" 94.84м². На 1-ом этаже: 🔹 кухня-гостиная 38,39 м² 🔹 комната 17,94 м² 🔹 сауна 8,78 м² 🔹 сан.узел 4,08 м² 🔹 душ 7,43 м² 🔹 терраса 32 м² На 2-ом этаже: 🔸 спальня 23,59 м²
Планировка
Характеристики проекта
Кровля
Профлист
Стены
Каркас
Перегородки
Деревянные
Перекрытия
Балочные
Общая площадь строение, м2
131.51
Внутренняя отделка
Черновая
Полезная площадь, м2
Высота потолков, м
2.35
Фундамент
Свайный
Фасад
Деревянный
Стиль
Американский
Форма крыши
Двухскатные
Сауна
Кухня-гостиная
Лестница
Окна в пол
Мансарда
Терраса
Второй свет
Входная дверь
Челябинская область
Удмуртская республика
Рязанская область
Курганская область
Свердловская область
Республика Башкортостан
Республика Татарстан (Татарстан)
Самарская область
Комплектации
Выгодная
Черновая
▫ Размеры дома: 14 х 8 м
▫ Фундамент свайно-винтовой
▫ Каркас внешних стен из бруса камерной сушки 50 × 200 мм с шагом 590 мм + утеплитель 200 мм
+ облицовка имитацией бруса
▫ Кровля двускатная утеплённая. Толщина
утеплителя 200мм. Покрыта профнастилом
▫ Окна 5-камерные ПВХ профили шириной 70мм, толщина стеклопакета 40мм, с увеличенным энергосбережением. Фурнитура «ROTO» или аналог
Стоимость от 4 995 000 ₽
Популярная
Предчистовая
▫ Размеры дома: 14 х 8 м
▫ Фундамент свайно-винтовой
▫ Каркас внешних стен из бруса камерной сушки 50 × 200 мм с шагом 590 мм + утеплитель 200 мм
+ облицовка имитацией бруса
▫ Кровля двускатная утеплённая. Толщина
утеплителя 200мм. Покрыта профнастилом
▫ Окна 5-камерные ПВХ профили шириной 70мм, толщина стеклопакета 40мм, с увеличенным энергосбережением. Фурнитура «ROTO» или аналог
Коммуникации:
▫ Канализация: септик / система водоотведения
▫ Котёл + радиаторное отопление
▫ Разводка электричества по дому в соответствии с ГОСТ
▫ Водоснабжение: скважина / колодец или централизированное + разведение по дому до сантехники
Стоимость от 6 493 000 ₽
Может заинтересовать















