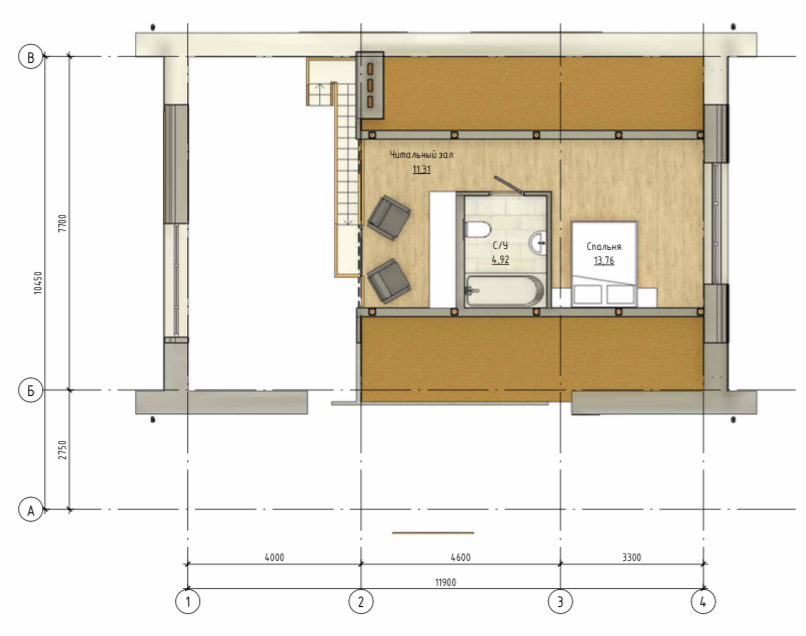
Проект современного одноэтажного дома мансардного типа в скандинавском стиле с открытой террасой, Площадь дома (общая) — 133,6 кв.м. Центральный фасад дома сформирован деревянными элементами с высоким коньком и панорамным остеклением. За счет такой конструкции кровли гостиная имеет высокие потолки по стропилам и дополнительное освещение внутреннего пространства. Кроме этого по задумке архитектора почти все окна в доме больше стандартных размеров. Отделка фасада — полнотелый кирпич ручной формовки. Кровля — металлическая фальцевая темно-серая, одного тона с оконными и дверными блоками. Планировочное решение проекта состоит из кухни-гостиной, двумя спальнями, котельной, с/у, гардеробной, кабинетом на первом этаже, и с/у и спальня с читальной зоной на втором этаже. Основная жилая зона — это входная группа, объединённое пространство гостиной и столовой с изолированной кухней (центральная зона дома), хозяйский мастер-блок с отдельной ванной комнатой и гардеробной, а также детская спальня. Открытая терраса-барбекю с раздвижными окнами. Проектом предусмотрены следующие технические помещения, без которых сложно представить комфортную загородную жизнь: Просторная удобная общая гардеробная в прихожей для хранения сезонных вещей. Котельная. Удобная постирочная.
















