Описание проекта
Продаётся уютный и экологичный дом из газобетона площадью 78 м². Это идеальное решение для комфортного проживания семьи в загородном районе или на даче. Дом спроектирован по современному стандарту, с удобной планировкой, просторными комнатами и функциональной кухней. Газобетонные стены обеспечивают отличную тепло- и звукоизоляцию, что сделает ваш дом ещё более комфортным. Не упустите возможность стать счастливым обладателем этого прекрасного дома!
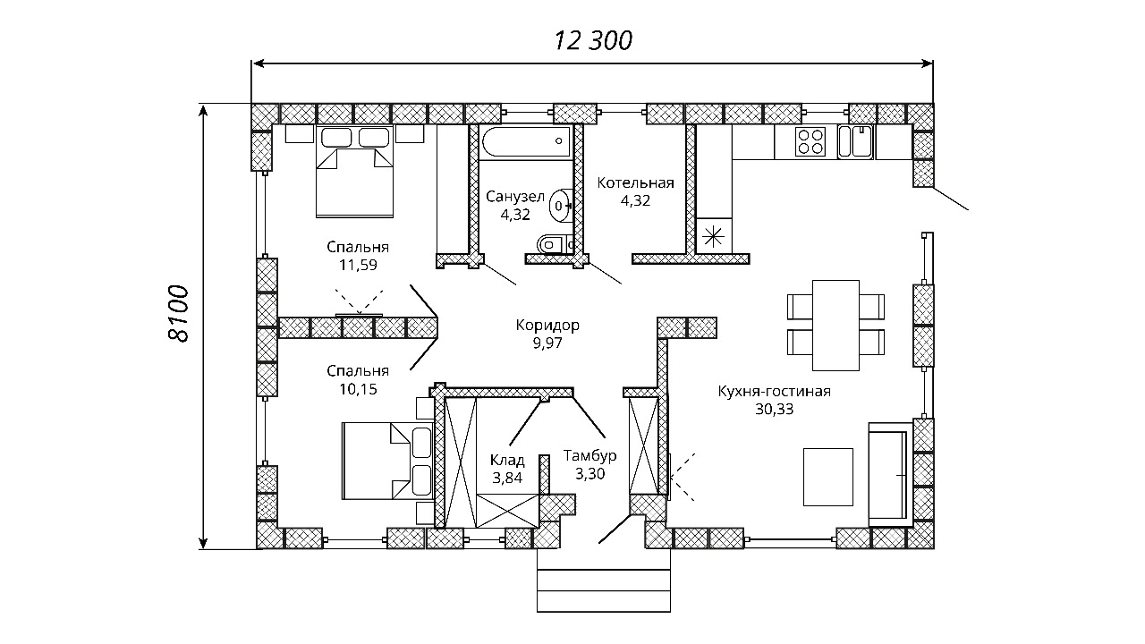
Планировка
Характеристики проекта
Кровля
Металлочерепица
Стены
Газобетон
Перегородки
Перекрытия
Общая площадь строение, м2
78
Внутренняя отделка
Черновая
Полезная площадь, м2
Высота потолков, м
Фундамент
Ленточный
Фасад
Штукатурка
Стиль
Форма крыши
Двухскатные
Новосибирская область
Комплектации
Выгодная
Базовая
1. Фундамент - ленточный
По периметру фундамента выполняется утепление пеноплексом тип 35 толщиной
50 мм
2. Наружные стены из газобетонных блоков СИБИТ, 400 мм
3. Внутренние стены из газобетонных блоков СИБИТ, толщиной 300 мм
4. Внутренние перегородки из газобетонных блоков СИБИТ, толщиной 150 мм
5. Перекрытие цокольное - пол по грунту
6. Перекрытие чердачное - Деревянное с устройством лаг сечением 200х50 мм
7. Конструкция крыши - двухскатная (20о) с деревянной стропильной системой.
8. Покрытие кровли - металлическая черепица, цвет RAL 7016 (Антрацит)
Стоимость от 4 990 000 ₽
Может заинтересовать












