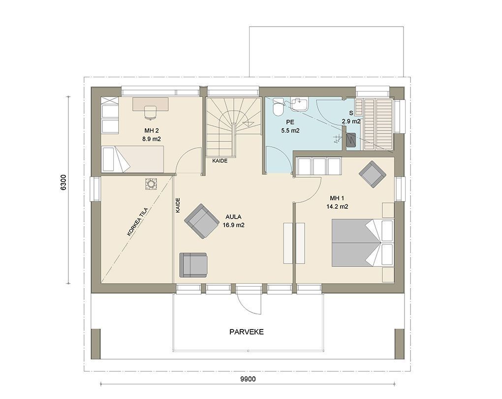
Архитектурный проект современного двухэтажного дома "Вива" подразумевает комфортное размещение семьи из четырех-пяти человек. Оригинальный дизайн с большим балконом, привлекательными архитектурными элементами и необычной наклонной крышей будет прекрасно смотреться как в коттеджном поселке, так и городе. Большие окна на обоих этажах обеспечивают естественное освещение в гостиной и спальных комнатах. Заходя в дом, попадаем в просторную зону отдыха, которая состоит из гостиной с камином в центре, обеденной зоны и кухни. Также на первом этом находится санузел и котельная с отдельной дверью. Поднявшись по лестнице на второй этаж, вы попадаете в большой холл с выходом на балкон. Здесь есть три спальни и санузел, рядом с которым можно устроить сауну. Варианты проекта позволяют увеличить пространство холла на втором этаже за счет уменьшения числа спальных комнат.




















