Описание проекта
Проект дома из бруса ВЗ-300 "Грот" Выразительный дом из бруса с контрастными акцентами в экстерьере. Срок строительства: 2 месяца
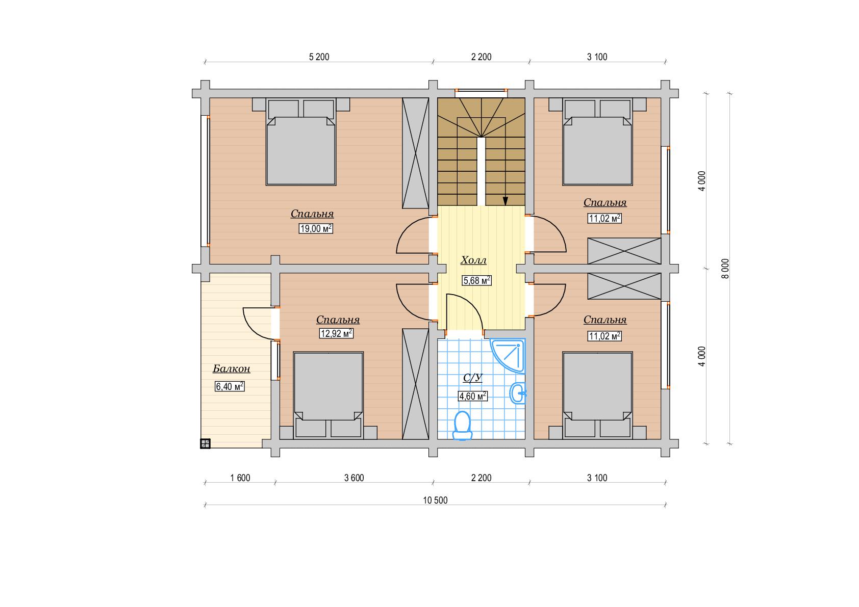
Планировка
Характеристики проекта
Кровля
Стены
Брус
Перегородки
Перекрытия
Общая площадь строение, м2
160
Внутренняя отделка
Полезная площадь, м2
Высота потолков, м
Фундамент
Фасад
Стиль
Форма крыши
Комплектации
Рекомендуем
Стандарт
В стоимость входит:
- Проектирование
- Замер участка
- Фундамент
- Домокомплект
- Кровля
- Доставка
Стоимость от 3 650 000 ₽
Может заинтересовать












