Описание проекта
Характеристики гаража: Материал: Каркас Площадь: 48 м.кв Размеры: 6 х 8 м.
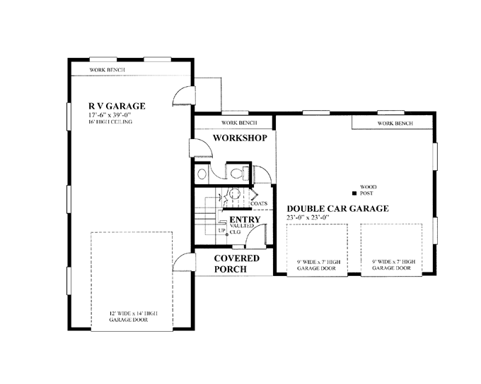
Планировка
Характеристики проекта
Кровля
Стены
Каркас
Перегородки
Перекрытия
Общая площадь строение, м2
48
Внутренняя отделка
Полезная площадь, м2
Высота потолков, м
Фундамент
Фасад
Стиль
Форма крыши
Костромская область
Может заинтересовать










