Описание проекта
Дом в современной стиле с плоской кровлей и панорамными окнами. Архитектурное решение такого дома предоставляет владельцам не только эстетическое наслаждение, но и значительное улучшение качества жизни.
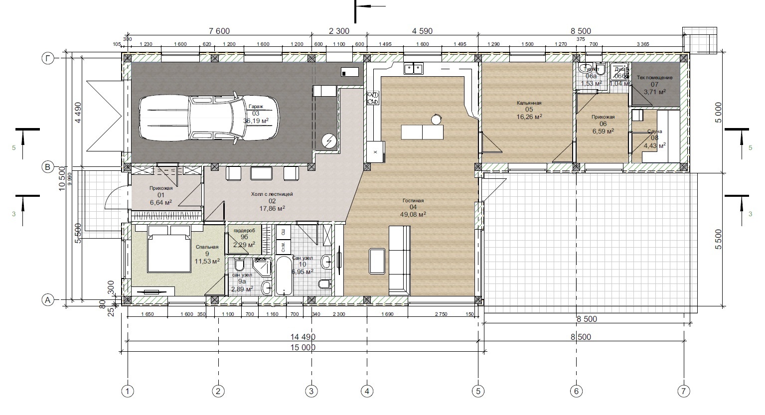
Планировка
Характеристики проекта
Кровля
Стены
Газобетон
Перегородки
Перекрытия
Общая площадь строение, м2
400
Внутренняя отделка
Полезная площадь, м2
Высота потолков, м
Фундамент
Фасад
Стиль
Форма крыши
Санкт-Петербург
Ленинградская область
Комплектации
Выгодная
Базовая
Ленточный фундамент, стены газобетон 300 мм, окна Veka Euroline, кровля мягкая черепица
Стоимость от 18 000 000 ₽
Популярная
Комфорт
Фундаментная плита УШП, окна Veka Softline, стеклопакет мультифункциональный, кровля мягкая черепица
Стоимость от 21 200 000 ₽
Рекомендуем
Бизнес
Фундаментная плита УШП, окна Veka Thermal, стеклопакет мультифункциональный, кровля мягкая черепица
Стоимость от 26 000 000 ₽
Может заинтересовать

















