Описание проекта
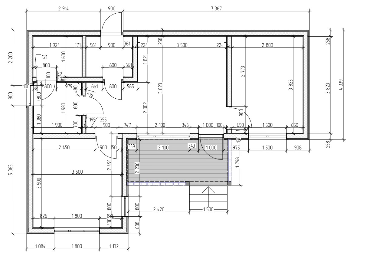
Проект каркасного жилого дома в 1 этаж, общей площадью 70,66 м2. Планировкой предусмотрена кухня-гостиная, 2 спальни, сауна, санузел, котельная.
Планировка
Характеристики проекта
Кровля
Стены
Каркас
Перегородки
Перекрытия
Общая площадь строение, м2
70.66
Внутренняя отделка
Полезная площадь, м2
Высота потолков, м
Фундамент
Фасад
Стиль
Форма крыши
Ленинградская область
Комплектации
Выгодная
Холодный контур
В данную комплектацию входит
Фундамент
Стены наружные и внутренние
Перекрытия
Кровля без утепления
Закладные по всем требованиям
Стоимость от 3 179 000 ₽
Популярная
Теплый контур
В данную комплектацию входит
Фундамент
Стены наружные и внутренние
Перекрытия
Закладные
Кровля с утеплением
Окна
Двери
Утепление фасада
Отделка внешняя
Утепление цоколя
Отмостки ЭППС
Подшивы свесов кровли
Водосточная система
Снегозадержатели
Разводка электрики
Прокладка труб ГВС и ХВС
Стоимость от 3 533 000 ₽
Рекомендуем
Под ключ
В данную комплектацию входит
Фундамент
Стены
Перекрытия
Закладные
Кровля с утеплением
Окна
Двери
Утепление фасада
Отделка внешняя
Утепление цоколя
Отмостки ЭППС
Подшивы свесов кровли
Водосточная система
Снегозадержатели
Разводка инженерных коммуникаций
Опрессовка систем
Оштукатуривание и грунтовка стен
Утепление и заливка полов
Стоимость от 4 946 200 ₽
Может заинтересовать













