Описание проекта
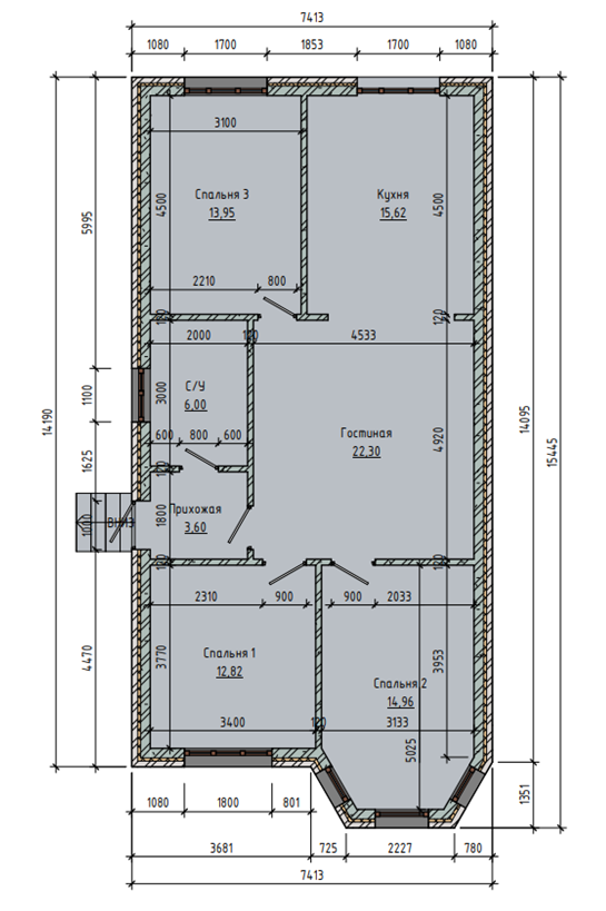
Типовой проект Уютный дом в 90 м2, где есть 3 спальни, 1 с/у, кладовая, кухня и большая гостиная. По желанию, за дополнительную плату, можем добавить стандартную террасу в 15 м2
Планировка
Характеристики проекта
Кровля
Стены
Кирпич
Перегородки
Перекрытия
Общая площадь строение, м2
90
Внутренняя отделка
Полезная площадь, м2
Высота потолков, м
Фундамент
Фасад
Стиль
Форма крыши
Ставропольский край
Комплектации
Недоступен к заказу
Предчистовая сделка
Дом сдается в предчистовой отделке: Механизированная стяжка пола. 6-8 см.; Механизированная штукатурка, гипсовыми смесями под обои, по маякам в санузлах, кухне; Газовый котел Fondital Minorca 24кВт, обвязка системы распределения и управления отоплением, теплые водяные полы везде кроме спален. Стальные радиаторы устанавливаются в жилых комнатах, в соответствии площади комнаты. Инженерная разводка - кабель медный, сечение вводного кабеля 3х4мм, на освещение 3х1,5мм на розетки 3х2,5мм. Кабель ГОСТ.
Кабель устанавливается по перегородкам и несущим стенам под штукатуркой. В комнате 3 точки розеток (в зависимости от площади комнат) и 1 выключатель и один провод подготовка под освещение.
Окна - Оконные блоки и балконные двери в составе оконных блоков выполнить из профиля ПВХ толщиной 70 мм, с 2-х камерными энергосберегающими стеклопакетами Solar.
Подоконники - Подоконная доска из ПВХ.
Дверь входная - Металлическая утепленная.
Стоимость от 3 950 000 ₽
Может заинтересовать
















