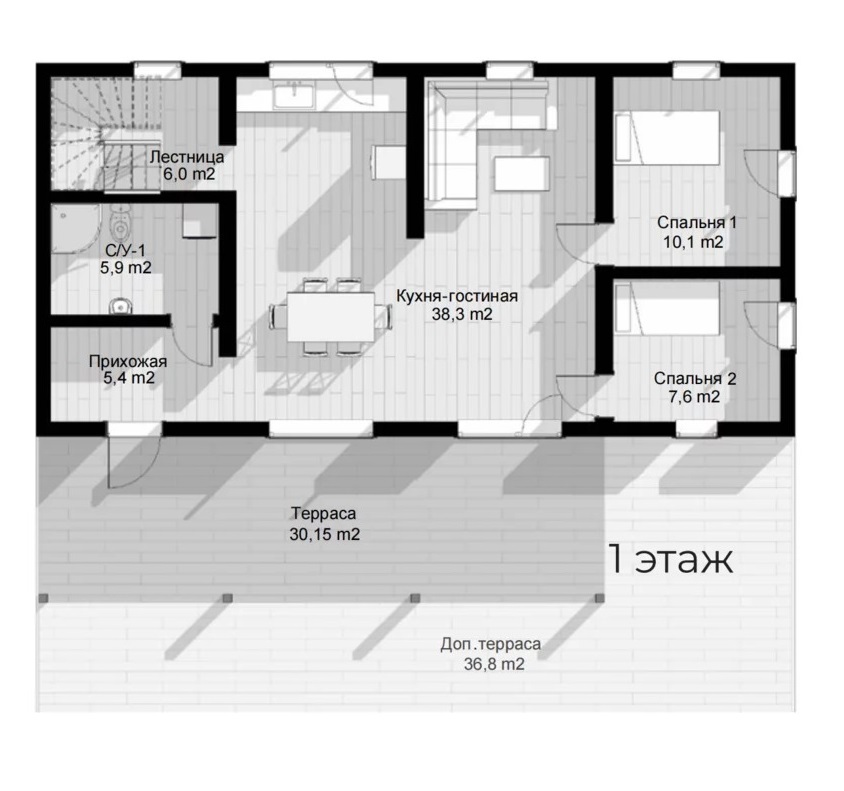
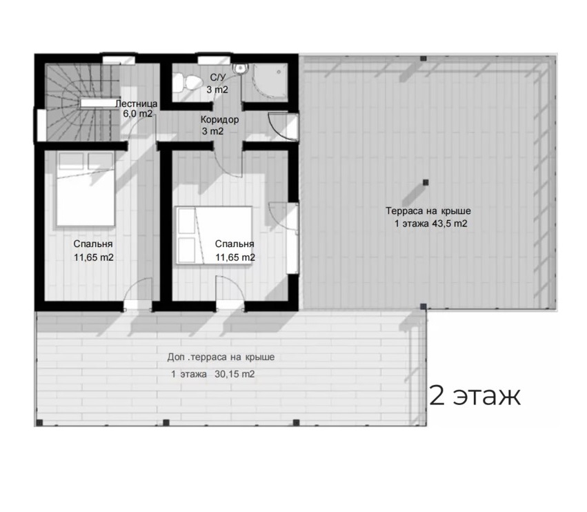
Lite 182 – четырёхкомнатный дом с большой террасой на втором этаже. Отличный выбор для большой семьи и гостеприимных хозяев. Большая площадь веранд и террас, огибающих дом, создаёт дополнительные места для отдыха на свежем воздухе. Все пространства спроектированы с учётом больших мест для хранения. В доме чистовая отделка с сантехникой в санузле, тёплые полы во всех внутренних помещениях. Проекты серии LITE имеют высокие потолки 2,8 м., панорамное остекление и террасы. Кровля над базовыми террасами и выступы кровли входят в стоимость. Общая площадь: 183,45 м² Террасы: 73,65 м² Количество спален: 4 Технология Prefab Дома производятся в заводских условиях. Строительство не зависит от погодных условий, а строительный материал не подвергаются агрессивному воздействую окружающей среды. Дома подходят для круглогодичного проживания. От покупки до переезда в свой дом всего 120 дней.

















