Описание проекта
Проект дома Ласточка с встроенным гаражом представляет собой красивое, уютное и очень функциональное здание. Это одноэтажный дом площадью 119,7 м² с мансардой. Он был точно разработан для нужд семьи из 4-5 человек. Компактный корпус дома, основанный на прямоугольном плане, покрыт мансардной крышей с очень простой деревянной конструкцией. Конек параллелен дороге, а крыша имеет угол наклона 40°.
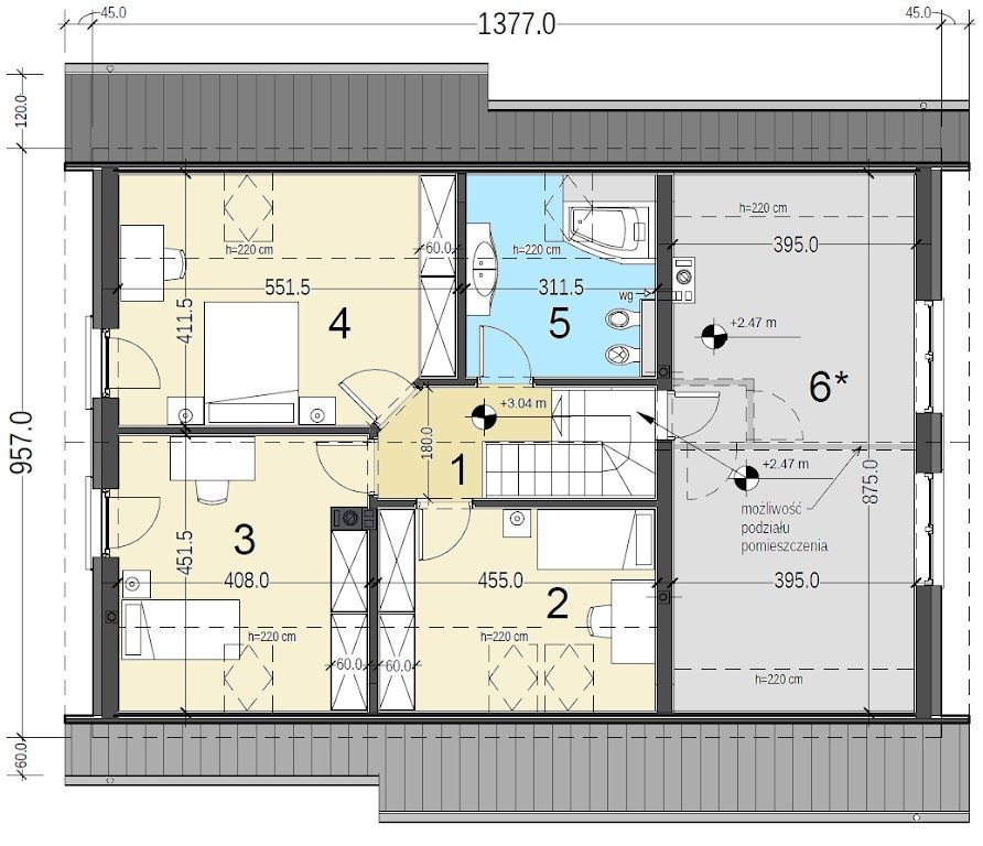
Планировка
Характеристики проекта
Кровля
Металлочерепица
Стены
Газобетон
Перегородки
Газобетон
Перекрытия
Плитные
Общая площадь строение, м2
202.9
Внутренняя отделка
Черновая
Полезная площадь, м2
184.2
Высота потолков, м
Фундамент
Монолитный
Фасад
Комбинированный
Стиль
Современный
Форма крыши
Двухскатные
Гараж на 1 машину
Чердак
Санкт-Петербург
Ленинградская область
Комплектации
Выгодная
По каркасной технологии
В стоимость дома входят:
1. Земляные работы, фундамент и внешние сети
2. Стены внешние и внутренние несущие с утеплением
3. Теплые окна и двери
4. Кровля утепленная с ветрозащитной мембраной и пароизоляцией из металлочерепицы или кликфальца.
Стоимость от 3 665 200 ₽
Популярная
Из газобетона
В стоимость дома входят:
1. Земляные работы, фундамент и внешние сети
2. Стены внешние и внутренние несущие с утеплением
3. Теплые окна и двери
4. Кровля утепленная с ветрозащитной мембраной и пароизоляцией из металлочерепицы или кликфальца.
Стоимость от 4 117 400 ₽
Рекомендуем
Из кирпича или монолит
В стоимость дома входят:
1. Земляные работы, фундамент и внешние сети
2. Стены внешние и внутренние несущие с утеплением
3. Теплые окна и двери
4. Кровля утепленная с ветрозащитной мембраной и пароизоляцией из металлочерепицы или кликфальца.
Стоимость от 5 319 300 ₽
Может заинтересовать













