Описание проекта
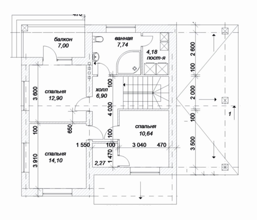
Индивидуальный жилой дом: площадь дома – 122,68 м2. Планировка: - кухня-гостиная площадью 26,63 м2; - 4 изолированных комнаты площадью от 10,64 м2 до 14,10 м2; - 2 санузла от 3,91 м2 до 11,92 м2; - прихожая 23,15 м2; - гардеробная 2,27 м2; - котельная 5,00 м2.
Планировка
Характеристики проекта
Кровля
Стены
Кирпич
Перегородки
Перекрытия
Общая площадь строение, м2
122
Внутренняя отделка
Полезная площадь, м2
Высота потолков, м
Фундамент
Фасад
Стиль
Форма крыши
Саратовская область
Комплектации
Рекомендуем
Базовая
Индивидуальный жилой дом: площадь дома – 122,68 м2.
Планировка:
- кухня-гостиная площадью 26,63 м2;
- 4 изолированных комнаты площадью от 10,64 м2 до 14,10 м2;
- 2 сан узла от 3,91 м2 до 11,92 м2;
- прихожая 23,15 м2;
- гардеробная 2,27 м2;
- котельная 5,00 м2.
Фундамент - ленточный фундамент.
Наружные стены - двойной поризованный камень завода Римкер 250 мм, утеплитель 50 мм, облицовочный кирпич - 120 мм. Внутренние стены - двойной поризованный камень завода Римкер 250 мм. Перегородки - кирпич 120 мм. Кровля 4-х скатная (сложная) с организованным водостоком.
Оконное остекление выполняется из 60 мм профиля (2-х камерный стеклопакет) с наружной (уличной) ламинацией.
Входная дверь с терморазрывом (коттеджный вариант).
Утепление потолка – Минплита Изолайт (или аналог, плотность 40 кг/м3) толщиной 150 мм.
Стоимость от 7 600 000 ₽
Может заинтересовать















