Описание проекта
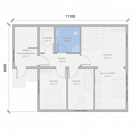
Площадь: 75 кв.м. Размеры 8,4*11,1 м. Количество этажей: 1 Количество санузлов: 1 Количество спален: 2 Материал стен: антисептированный деревянный каркас из доски 50*150 мм с утеплением минераловатными плитами KNAUF INSULATION 150 мм. Фундамент: ленточный малозаглубленный Отмостка: утепленная с использованием экструзионного пенополистирола (XPS, ЭППС) толщиной 40 мм. Перегородки и внутренние стены: деревянный каркас из доски сечением 150*50 или 100*50 мм, утепление KNAUF INSULATION на всю ширину каркаса Оконные блоки: двухкамерный стеклопакет (32 мм 4М1/10/4М1/10/4М1) профиль 58 мм. КВЕ. Дверь входная: толщина металла не менее 0,8 мм.
Планировка
Характеристики проекта
Кровля
Стены
Каркас
Перегородки
Перекрытия
Общая площадь строение, м2
75
Внутренняя отделка
Полезная площадь, м2
Высота потолков, м
Фундамент
Фасад
Стиль
Форма крыши
Смоленская область
Может заинтересовать













