Описание проекта
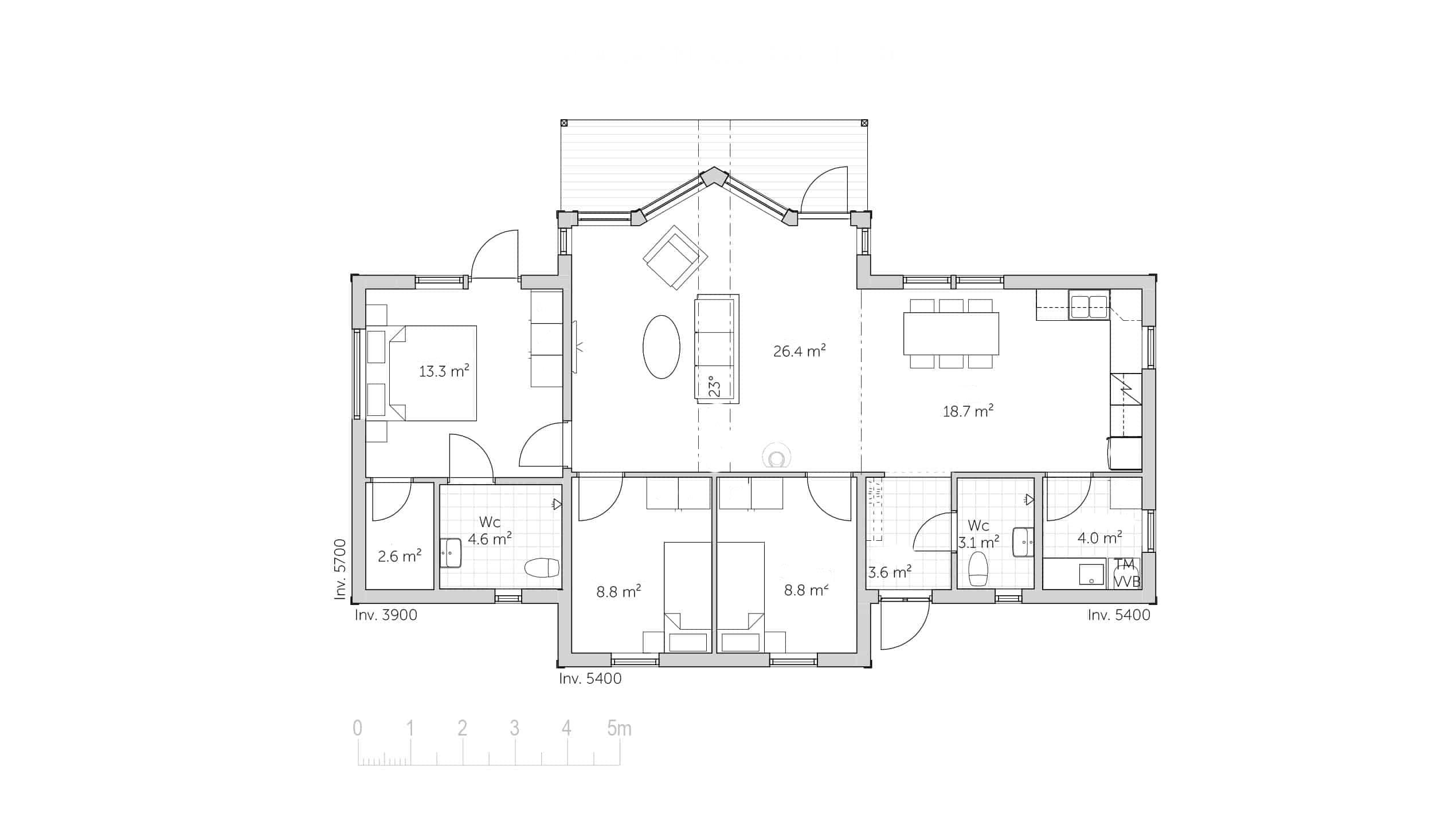
S.Dom-Effect-119 — это дом для отдыха с большой гостиной. Это, по сути, вилла, ставшая домом для отдыха, и здесь вы найдете все функции для практичного и приятного отдыха. В доме три спальни, в самой большой из которых есть все, что только можно пожелать, включая вместительный гардероб, собственный туалет и выход во внутренний дворик. Гостиная, соединенная с кухней и столовой, имеет шатровую крышу, которая вместе с высокими окнами создает прекрасное пространство. Здесь идеальное место для времяпровождения друзей и семьи. Большая крытая терраса — большой бонус этого дома для отдыха!
Планировка
Характеристики проекта
Кровля
Стены
Сип-панели
Перегородки
Перекрытия
Общая площадь строение, м2
119
Внутренняя отделка
Полезная площадь, м2
Высота потолков, м
Фундамент
Фасад
Стиль
Форма крыши
Комплектации
Выгодная
Тепловой контур
1. Вид фундамента:
- фундамент бетонные забивные сваи длиной 3000 мм. Залегание от уровня земли 2500 мм, оголовок 200*200 с минимальной высотой от уровня земли 300 мм. Ростверк из деревянных балок сечением 200*150 мм составной, из доски 50*200 мм, с последующей обработкой антисептиком (биозащитой).
2. Материалы элементов здания:
- полы настил из SIP панелей 174*625*2500 мм соединенных брусом сечением 150*100мм;
- стены первого этажа из SIP панелей 174*1250*2800 мм соединенных брусом сечением 150*100 мм;
- перегородки в помещениях первого этажа выполнить из бруса сечением 150*50 и 100*50 мм (согласно представленной планировки), без наполнения звукоизоляцией и без обшивки;
- перегородки в помещениях второго этажа выполнить из бруса сечением 100*50 мм (согласно представленной планировки), без наполнения звукоизоляцией и без обшивки;
- кровля здания: стропильная система из бруса сечением 50*200 мм, устройство паро- и гидроизоляции, устройство утепления минеральной ватой, обрешетка из доски 25*100 (25*125, 25*150), черновое покрытие ОСП-3 толщиной 9 мм, покрытие гибкая черепица ТехноНиколь серия Ранчо (цвет по согласованию с Заказчиком), устройство вентиляционного прохода (2 шт.), подшив карнизных свесов профилированным листом;
- заполнение оконных проемов окнами из ПВХ профиля;
- установка вентиляционных выходов;
- установка входной двери.
Стоимость от 3 008 000 ₽
Может заинтересовать











