Описание проекта
Одноэтажный дом загородного типа с 2мя спальнями и большой кухней-гостиной со вторым светом.
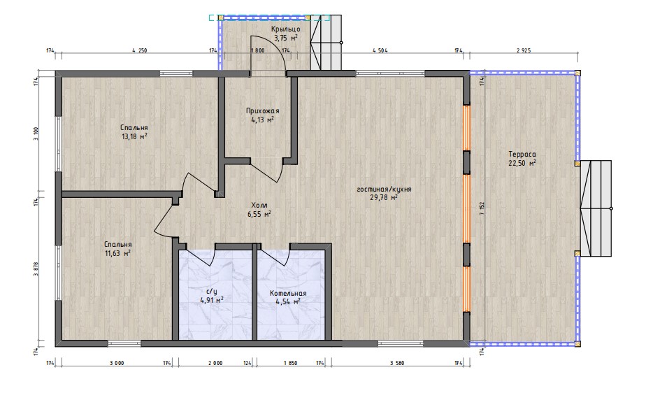
Планировка
Характеристики проекта
Кровля
Металлочерепица
Стены
Сип-панели
Перегородки
Гипсокартон
Перекрытия
Общая площадь строение, м2
96
Внутренняя отделка
Предчистовая
Полезная площадь, м2
70
Высота потолков, м
2.8
Фундамент
Свайный
Фасад
Сайдинг
Стиль
Современный
Форма крыши
Двухскатные
Второй свет
Панорамные окна
Терраса
Кухня-гостиная
Ульяновская область
Оренбургская область
Самарская область
Пензенская область
Комплектации
Рекомендуем
Предчистовая
Дом приведен по стоимоти в предчистовой отделке. Фасад -виниловый сайдинг, панорамные окна и второй свет в кухне-гостиной (потолок к конек) отопление посредством водяного теплого пола с полусухой стяжкой от электрического котла. Так же в стоимоть вошла разводка электрики, комплекс работ п предчистовой отделке ( пароизоляция швов, гидроизоляция ванной и технического помещения), стены обшиты гипсокартоном. Так же в расчет вошла канализация (септик) с установкой и соединение с разводкой канализации в доме
Стоимость от 6 271 603 ₽
Может заинтересовать













