Описание проекта
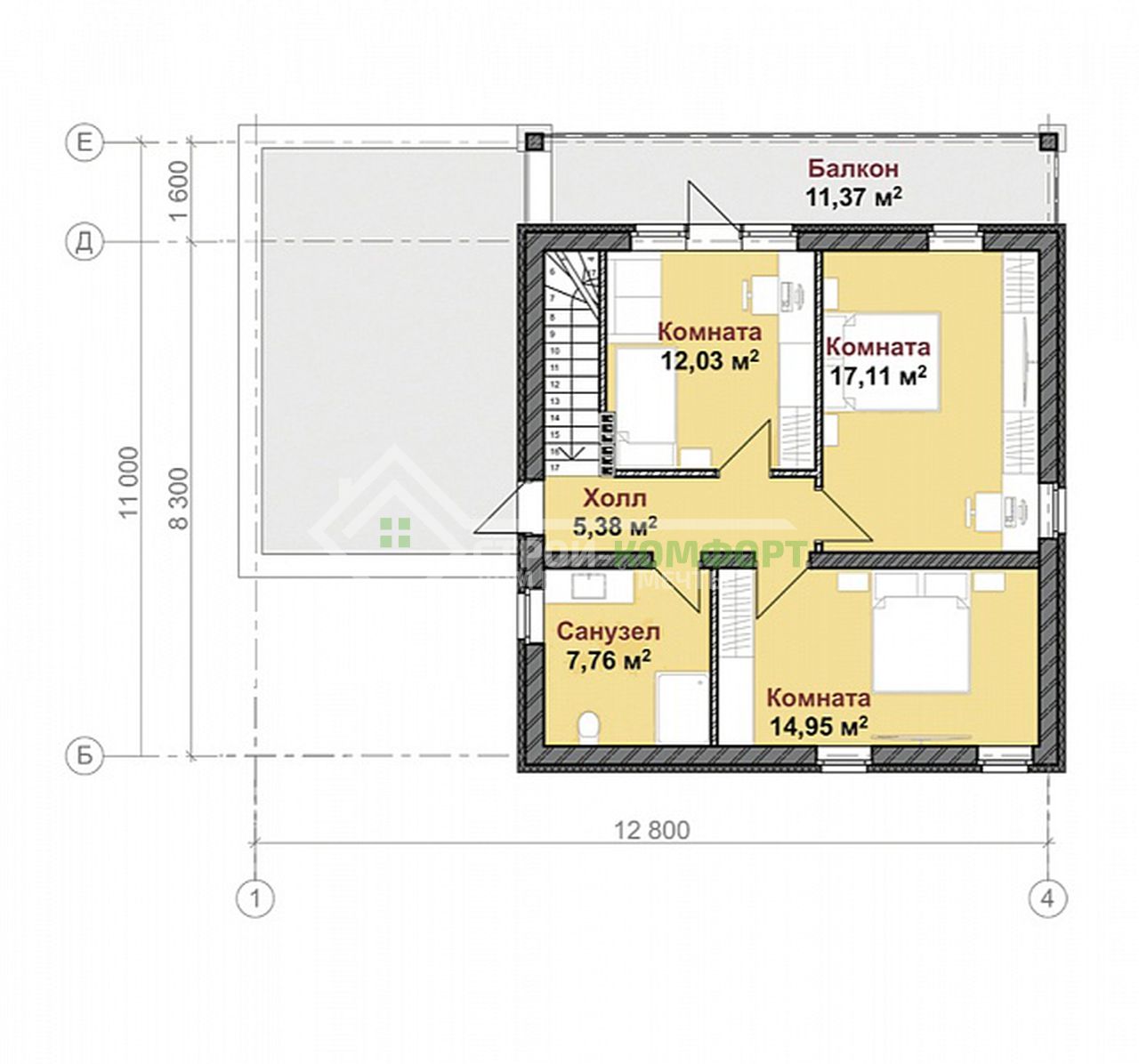
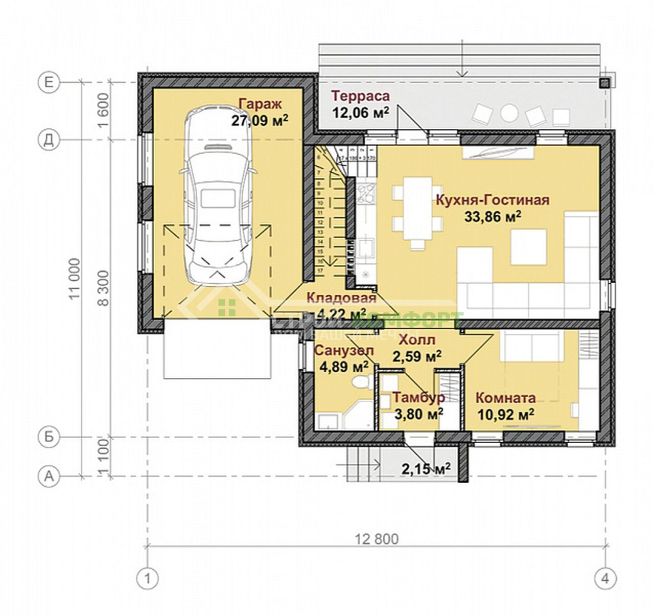
Проект дома с гаражом Ц-52-64 1 этаж: кухня-гостиная с выходом на террасу, кабинет, санузел, холл, тамбур, кладовая с проходом в гараж. 2 этаж: 3 спальни, одна из которых имеет выход на балкон, санузел, холл с выходом на террасу над гаражом.
Планировка
Характеристики проекта
Кровля
Металлочерепица
Стены
Газобетон
Перегородки
Газобетон
Перекрытия
Балочные
Общая площадь строение, м2
141
Внутренняя отделка
Черновая
Полезная площадь, м2
Высота потолков, м
3
Фундамент
Ленточный
Фасад
Штукатурка
Стиль
Хай-тек
Форма крыши
Плоские
Республика Адыгея
Краснодарский край
Комплектации
Выгодная
Базовая
Фундамент - ж/б ленточный
Пол - ж/б плита
Стены - газобетонный блок
Перегородки - газобетонный блок
Армопояс - ж/б монолитный
Кровля - металлочерепица
Перекрытие - утепленное
Стоимость от 6 910 000 ₽
Популярная
Тёплый контур
Фундамент - ж/б ленточный
Пол - ж/б плита
Стены - газобетонный блок
Перегородки - газобетонный блок
Армопояс - ж/б монолитный
Кровля - металлочерепица
Водосточная система - металлическая
Окна - металлопластиковые энергосберегающие
Дверь входная - металлическая утепленная
Перекрытие по балкам - утепленное
Стоимость от 7 330 000 ₽
Рекомендуем
Предчистовая
Фундамент - ж/б ленточный
Пол - ж/б плита
Стены - газобетонный блок
Перегородки - газобетонный блок
Армопояс - ж/б монолитный
Кровля - металлочерепица
Водосточная система - металлическая
Окна - металлопластиковые энергосберегающие
Дверь входная - металлическая утепленная
Перекрытие по балкам - утепленное
Инженерные сети: электрика, первичный монтаж труб водоснабжения (хол/гор), канализации и отопления
Наружная отделка - декоративная штукатурка фасада
Механизированная штукатурка стен с замывкой «под обои» по маякам
Полусухая механизированная стяжка пола с теплоизоляцией
Стоимость от 8 740 000 ₽
Может заинтересовать














