Описание проекта
Проект "Бруклин" выполнен в современном стиле и предполагает размещение на большом земельном участке. Наличие балконов и больших террас позволяет визуально расширить пространство дома и органично вписать его в окружающий ландшафт. Гостинное пространство на первом этаже дает Вам применить различные дизайнерские решения, а также выполнить зонирование по Вашему вкусу и желанию. Второй этаж - зона комфортного отдыха и сна, где наряду с мастер-спальней и собственным санузлом, расположены и гостевые спальни. Данный проект рассчитан на супер комфортные условия жизни за городом.
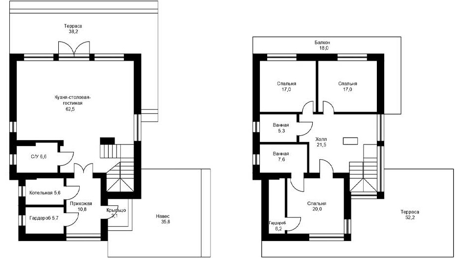
Планировка
Характеристики проекта
Кровля
Стены
Каркас
Перегородки
Перекрытия
Общая площадь строение, м2
334
Внутренняя отделка
Полезная площадь, м2
Высота потолков, м
Фундамент
Фасад
Стиль
Форма крыши
Комплектации
Выгодная
Базовая "Тёплый контур"
В базовую комплектацию "Тёплый контур" входит:
- Обвязка: доска камерной сушки 150х50мм;
- Каркас внешних стен, толщина 344 мм: объемный силовой каркас из цельного бруса 70х44мм, камерной сушки;
- Каркас внутренних стен, толщина 144 мм: объемный силовой каркас из цельного бруса 70х44мм, камерной сушки;
- Обработка каркаса: Обработка силового каркаса огне- и биозащитой Perilax
- Внешняя отделка "тёплого контура": Фибролитовые плиты GreenBoard, GB600W-25 мм
- Высота потолка: 1-й и 2-йэтажи - 3 м. (стандарт)
- Стропильная система: стропила выполняются по технологии ДЭКСИС
- Балки-перекрытия: Макс.длина безопорного пролета до 9 м
- Обрешетка крыши: доска обрезная 25х100мм;
- Парогидроизоляция: Для теплой кровли — мембрана FarAcs. Для холодной – парогидроизоляция Delta;
- Утепление стен, крыши, толщина 200-250 мм.: Эковата, закачиваемая аппаратным методом в единый тёплый контур;
- Терраса, балкон и крыльцо: с настилом из лиственницы - 147,68м2.
Стоимость от 8 314 880 ₽
Рекомендуем
Закрытый "Тёплый контур"
К базовой комплектации "Тёплый контур" добавляется:
- Устройство фундамента УШП (включая подготовку участка под плиту, организацию ливневой и дренажной систем с отводом, проведение коммуникаций: вода, канализация, отопления, теплые полы, - с выводом в местах пользования, согласно проекту, формирование гребенки теплого пола, прокладка коммуникаций на 1 метр от периметра дома, черновые полы для настила финишного материала (ламината, плитки и пр.))
- Устройство кровли (фальцевая кровля с водосточной системой)
- Окна, включая монтаж (площадь остекления 44 м², профиль Rehau 70, фурнитура Roto)
- Входная дверь с терморазрывом
Стоимость от 11 579 588 ₽
Может заинтересовать














