Описание проекта
Двухэтажный дом со вторым светом из клееного бруса в стиле шале. Внутри 4 спальни, 4 санузла и просторная кухня-гостиная.
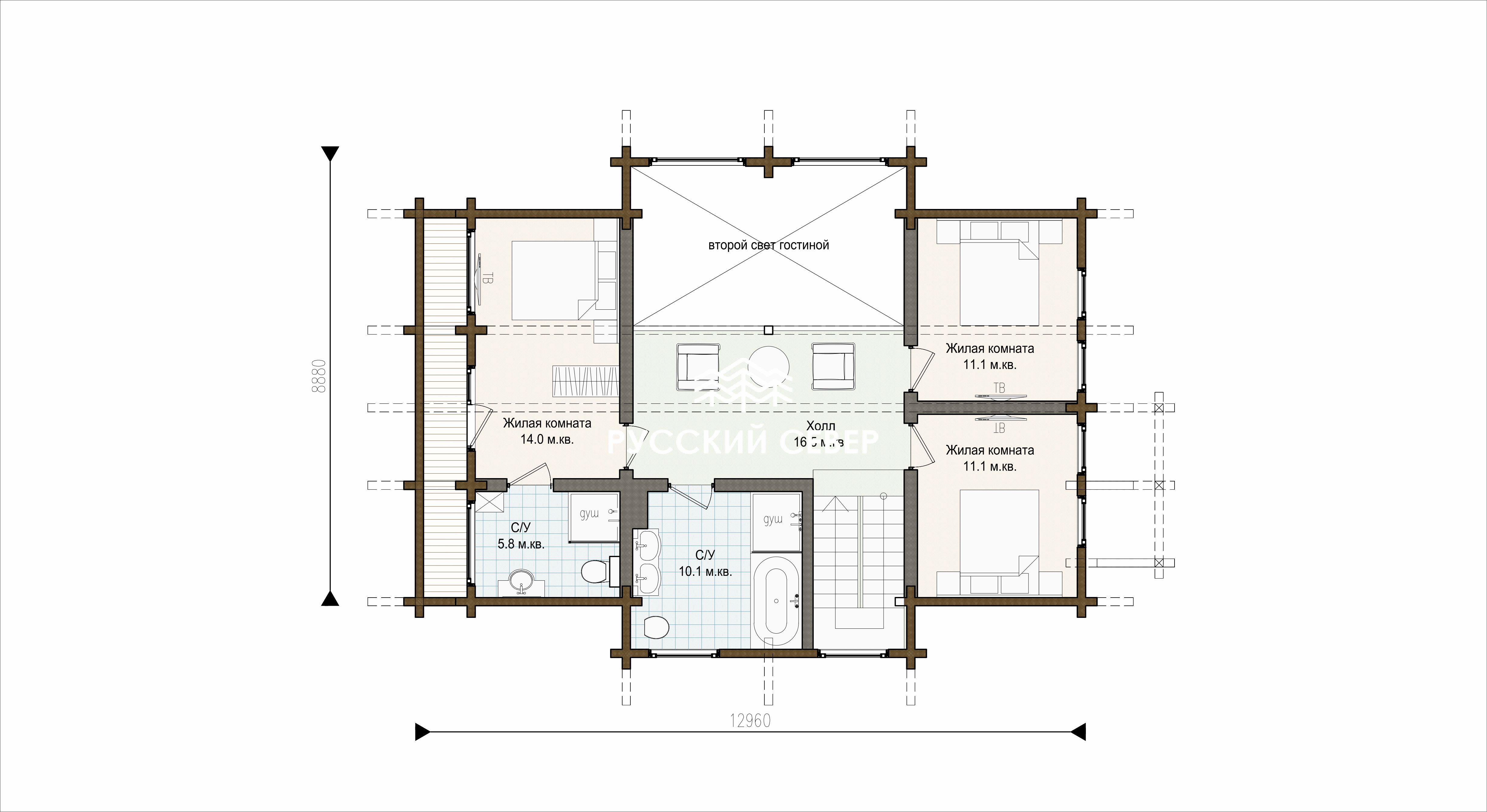
Планировка
Характеристики проекта
Кровля
Стены
Клееный брус
Перегородки
Перекрытия
Общая площадь строение, м2
200
Внутренняя отделка
Полезная площадь, м2
Высота потолков, м
Фундамент
Фасад
Стиль
Форма крыши
Комплектации
Рекомендуем
Теплый контур
В комплектацию "теплый контур" входит домокомплект, остекление, кровля с утеплением 250 мм и обработка бруса специальным составом.
Стоимость от 9 400 000 ₽
Может заинтересовать













