Описание проекта
Современная баня в Северо-Европейском стиле Материал в проекте: Бревно ф26 см. Общая площадь: 38 кв.м. Комнаты: 1 Санузлы: 2 объединенных Срок строительства: 1 месяц
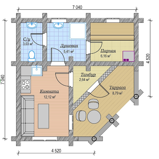
Планировка
Характеристики проекта
Кровля
Стены
Бревно
Перегородки
Перекрытия
Общая площадь строение, м2
38
Внутренняя отделка
Полезная площадь, м2
Высота потолков, м
Фундамент
Фасад
Стиль
Форма крыши
Санкт-Петербург
Московская область
Вологодская область
Может заинтересовать









