Описание проекта
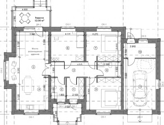
Одноэтажный дом Размер: 19,0 х 10,6м. Наружные стены здания - керамзитобетонный блок (400мм) с утеплением (100мм) Облицовка - облицовочный кирпич, (120 мм). Внутренние несущие стены - керамзитобетонный блок (300 мм). Перегородки - керамзитобетонный блок (120мм). Покрытие кровли - Покрытие кровли - Технониколь. Площадь дома – 144 м² Площадь крыльца - 7,74 м² Площадь террасы – 12м²
Планировка
Характеристики проекта
Кровля
Стены
Керамический блок
Перегородки
Перекрытия
Общая площадь строение, м2
144
Внутренняя отделка
Полезная площадь, м2
Высота потолков, м
Фундамент
Фасад
Стиль
Форма крыши
Тюменская область
Комплектации
Популярная
Коробка дома
Ленточный фундамент, Наружные стены здания - керамзитобетонный блок (400мм) с утеплением (100мм)
Облицовка - облицовочный кирпич, (120 мм), Внутренние несущие стены - керамзитобетонный блок (300 мм).
Перегородки - керамзитобетонный блок (120мм), Покрытие кровли - мягкая черепица Технониколь.
Стоимость от 9 500 000 ₽
Может заинтересовать











