Описание проекта
Комфортный и красивый дом, в котором есть все самое необходимое. На одном этаже отлично расположились кухня-гостиная, 2 спальни, кабинет, раздельный санузел, тех. помещение. Дом может быть выполнен из газобетона, керамоблока и кирпича. В указанную комплектацию входит: работы на участке, фундамент, стены из газобетона, перекрытия ЖБИ, кровля (металлочерепица), утепление, окна и входная дверь с терморазрывом. + септик с заводом в дом и подключением, + скважина с заводом в дом, завод в дом электричества с подключением к автомату+розетка, + временный электрический котел и временная система отопления по всем помещениям с подключением к котлу (радиаторы).
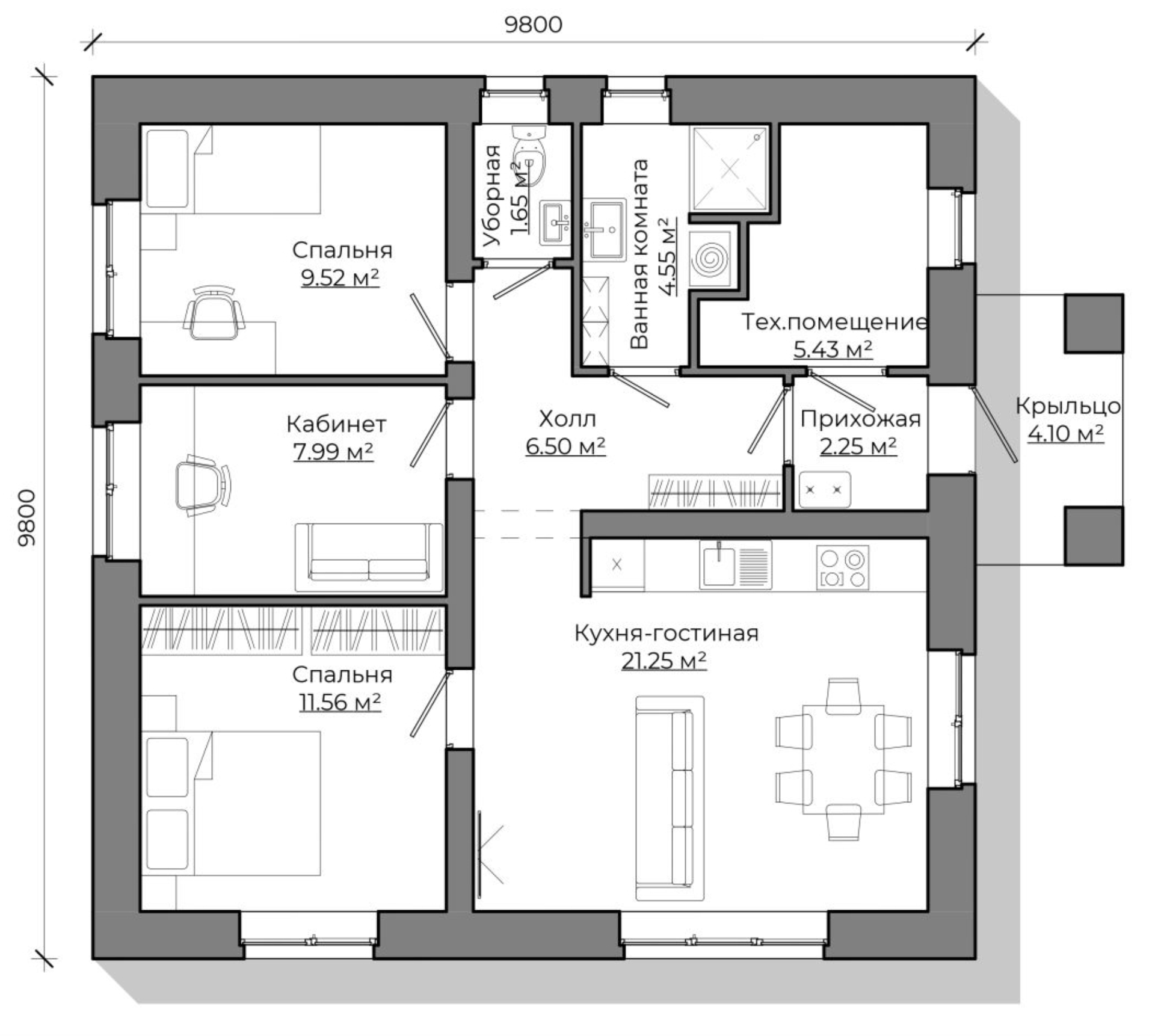
Планировка
Характеристики проекта
Кровля
Металлочерепица
Стены
Газобетон
Перегородки
Газобетон
Перекрытия
Балочные
Общая площадь строение, м2
100
Внутренняя отделка
Полезная площадь, м2
75
Высота потолков, м
3
Фундамент
Монолитный
Фасад
Облицовочный кирпич
Стиль
Американский
Форма крыши
Двухскатные
Кухня-гостиная
Входная дверь
Владимирская область
Комплектации
Выгодная
Базовая
В комплектацию входит:
1. Подготовительные работы:
- Разработка индивидуального проекта
- Подготовка комплекта документов для согласования в БТИ
- Предварительный выезд инженера на строительный объект
2. Фундамент:
- Высота ( толщина) плиты 300-500 мм
- Выборка котлована
- Геотекстиль
- Песчаная подушка с послойным трамбованием
- Гидроизоляция
- Пеноплекс 50 мм
- Двойной арматурный каркас, ячея 200*200 мм арматура Ø 12 мм, А III, защитный слой бетона 30-50 мм, П-шки арматура Ø 8 мм А I
- Бетон заводского изготовления, марки М 300
- Закладные гильзы под инженерные сети: вода, электричество, канализация
- Вибрирование бетона с помощью глубинного вибратора
- Обмазочная гидроизоляция боковых торцов в 2 слоя
- Двойная гидроизоляция фундамента битумной мастикой
3. Возведение стен:
- Высота 1 и 2 этажа 2,7м.
- Высота мансардной стены 1,5 м
- Газобетонные блоки толщиной 375 мм, плотность D400
- Армирование кладки — верх первого ряда, каждый последующий 3 ряд, под окнами с заходом в стену на 0,5 м от края откоса
- Кладочный клей. При нулевых — отрицательных температурах с присадками до – 15 градусов
- Оформление оконных и дверных проемов
- Перемычки из U-блоков над проёмами или железные уголки: 100*100*10 мм, 75*75*8 мм
- Монолитный пояс под перекрытия
- Бетон М300, арматура Ø 12 мм А III, хомуты Ø 8 мм А I
- Устройство вентиляционных каналов
- Перегородки газобетон толщиной 100 мм, плотность D500
- Замазка швов
4. Монолитный пояс:
- Поперечное сечение 175 Х 250 мм
- Опалубка двухсторонняя несъемная из газобетонных У блоков.
- Арматурный каркас из арматуры диаметром 12 мм, АIII, защитный слой 30мм.
- Угловые усиления из арматуры диаметром 12 мм, АIII.
- Хомуты из арматуры диаметром 8 мм, АI, с шагом 200-300 мм.
- Бетон заводского изготовления марки М300.
- Укладка бетона с применением глубинного вибратора.
- Укрытие и уход за бетоном.
- Контроль конструкционной прочности бетона.
5. Перекрытия по деревянным балкам:
- Шаг балок кратно утеплителю 58см.
- Длина балок до 4,5м.
- Проклейка швов пароизоляции.
- Обработка балок биозащитой
- Обустройство чердачного проёма
6. Кровля:
- Антисептирование всех деревянных элементов биозащитой «Neomid»
- Мауэрлат доска 50*200 в два слоя, крепится на шпильки
- Стропила 50*200 мм, шаг 580 мм
- Обрешетка 25*100 мм
- Контр обрешетка 50*50 мм
- Металлочерепица: полиэстер / сатин, высокий класс цинкового покрытия, фасонные элементы: коньки, ветровые, капельники, цвета в ассортименте.
- Вентиляционные выходы в цвет кровли
- Крепежные оцинкованные элементы
7. Окна:
- Двухкамерный стеклопакет (3 стекла толщиной 40 мм)
- 5-ти камерный профиль
- Оконные конструкции Rehau Grazio.
- Толщина профиля 70 мм
- Цвет белый
- Фурнитура Vorne (Турция)
- Подоконники пластик 300 мм, белые
- Отлив 150 мм, подоконник
Наружние двери:
- Входная металлическая дверь с зимним утеплителем. Производство Россия
- Четвертый класс взломостойкости.
- Толщина металла 1,5 мм.
- Замковая часть 3 мм
- Дверь уличного типа с терморазрывом (не боится влаги)
+ септик с заводом в дом и подключением,
+ скважина с заводом в дом, завод в дом электричества с подключением к автомату+розетка,
+ временный электрический котел и временная система отопления по всем помещениям с подключением к котлу (радиаторы).
Стоимость от 5 883 900 ₽
Может заинтересовать













