Описание проекта
Общая площадь 100 м2, количество этажей: 2 , количество комнат: 4 , количество санузлов: 2, , терраса: нет , котельная: да , материал стен: профилированный брус.
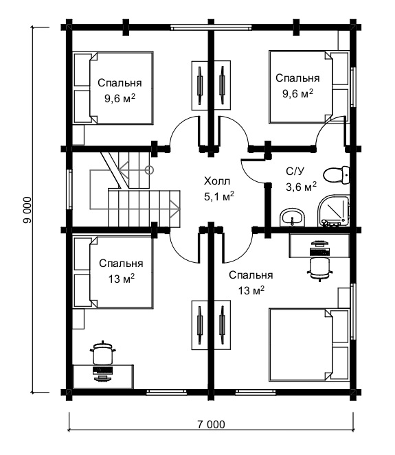
Планировка
Характеристики проекта
Кровля
Стены
Брус
Перегородки
Перекрытия
Общая площадь строение, м2
100
Внутренняя отделка
Полезная площадь, м2
Высота потолков, м
Фундамент
Фасад
Стиль
Форма крыши
Республика Башкортостан
Комплектации
Недоступен к заказу
Чистовая отделка
1. Базовая комплектация
2. Окна ПВХ
3. Дверь металлическая
5. Инженерные коммуникации (свет, вода, отопление, канализация)
6. Чистовые полы и потолки
Стоимость от 3 200 000 ₽
Может заинтересовать














