Описание проекта
Проект дома 185 м2 в оптимальной комплектации представляет собой набор чертежей для полноценного строительства.
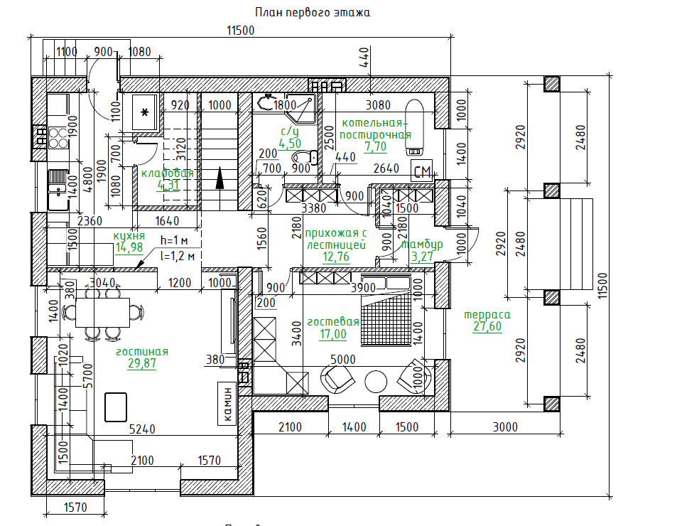
Планировка
Характеристики проекта
Кровля
Стены
Перегородки
Перекрытия
Общая площадь строение, м2
120
Внутренняя отделка
Полезная площадь, м2
185
Высота потолков, м
3
Фундамент
Фасад
Стиль
Форма крыши
Брянская область
Может заинтересовать



















